Обрешетка под гипсокартон на стене — ключевой этап отделки, обеспечивающий надежную основу для крепления листов. Правильный монтаж каркаса из деревянного бруса или металлического профиля гарантирует долговечность конструкции и предотвращает деформации и трещины на стенах. В статье рассмотрим технологии и нюансы создания обрешетки, что поможет вам успешно выполнить эту задачу и достичь качественного результата в отделке интерьера.
Металлический профиль или деревянный брус?
Выбор варианта зависит от ситуации. Каждый материал имеет свои плюсы и минусы. Наиболее популярным решением является обрешетка из оцинкованных изделий благодаря следующим преимуществам:
- Влагоустойчивость. Эти детали проходят защитную обработку, предотвращающую коррозию. Для резки рекомендуется использовать специальные ножницы, так как дисковые инструменты могут повредить покрытие.
- Устойчивость к плесени и грибку. Оцинкованный профиль сохраняет свои свойства на протяжении всего срока службы, в отличие от деревянного бруса, который требует обработки антисептиками.
- Пожаробезопасность. Металлические элементы не способствуют быстрому распространению огня, а качественные материалы сохраняют структуру при высоких температурах. Брус, обработанный антипиренами, лишь незначительно увеличивает время до возгорания.
- Износостойкость и прочность. Профиль не подвержен температурным изменениям и деформациям, что обеспечивает ровную поверхность гипсокартонных плит.
- Дизайнерское разнообразие. Установка оцинкованных изделий возможна по различным технологиям, что позволяет создавать конструкции разной сложности.
Брус подходит для внутренней отделки деревянных строений, так как компенсирует температурные изменения, зависящие от климата. Металлический профиль также может справляться с этой задачей при правильной последовательности монтажа.
К плюсам бруса относится более низкая стоимость, однако цена качественных изделий (с учетом защитных составов) может быть сопоставима с ценами на оцинкованные детали.
На заметку! Технология монтажа позволяет использовать разные материалы. Древесина лучше удерживает саморезы, поэтому ее часто применяют в качестве закладных или усиливающих элементов в металлических каркасах.
При создании обрешетки под гипсокартон на стене эксперты рекомендуют учитывать несколько ключевых аспектов. Во-первых, важно правильно выбрать материал для обрешетки: металлические профили или деревянные рейки. Металлические профили более устойчивы к влаге и деформации, в то время как деревянные рейки легче в установке и более доступны по цене.
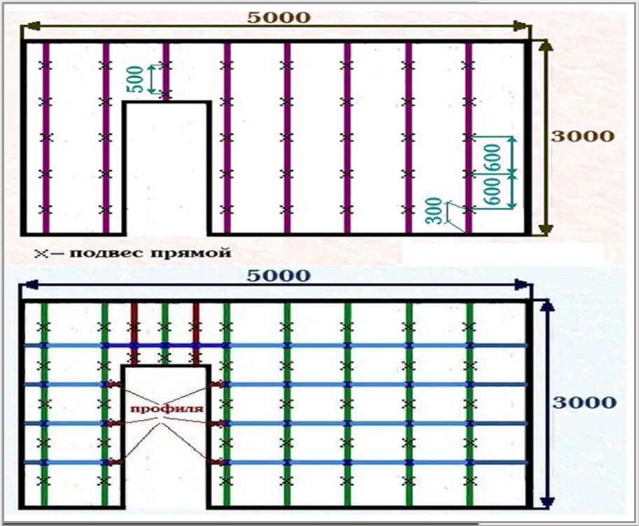
Во-вторых, необходимо точно измерить расстояние между стойками, чтобы обеспечить надежную поддержку гипсокартона. Оптимальное расстояние составляет 60 см, что позволяет избежать прогибов и трещин.
Также стоит обратить внимание на уровень и вертикальность установки обрешетки. Использование строительного уровня поможет избежать ошибок, которые могут привести к проблемам в дальнейшем. Наконец, эксперты советуют заранее продумать расположение электропроводки и других коммуникаций, чтобы избежать дополнительных трудностей при монтаже.

Возведение обрешетки
Процесс разделяется на этапы, имеющие некоторые особенности, в зависимости от способа.
| Тип обрешетки | Шаг обрешетки (мм) | Рекомендуемые материалы |
|---|---|---|
| Деревянная | 400-600 (для стандартных листов ГКЛ) | Брус 40×50 мм, 50×50 мм, саморезы по дереву, антисептик |
| Металлическая | 400-600 (для стандартных листов ГКЛ) | Профили UD и CD, саморезы по металлу, подвесы |
| Комбинированная (деревянная + металлическая) | 400-600 (для стандартных листов ГКЛ) | Брус 40×50 мм, профили UD и CD, саморезы по дереву и металлу |
Интересные факты
Вот несколько интересных фактов о создании обрешетки под гипсокартон на стене:
-
Выбор материала: Для обрешетки часто используют металлические профили или деревянные рейки. Металлические профили более устойчивы к влаге и гниению, что делает их идеальными для влажных помещений, таких как ванные комнаты. Деревянные рейки, в свою очередь, легче обрабатывать и устанавливать, но требуют дополнительной обработки для защиты от влаги и насекомых.
-
Правильное расстояние: Расстояние между элементами обрешетки обычно составляет 40-60 см. Это зависит от типа гипсокартона и предполагаемой нагрузки. Например, для стандартного листа толщиной 12,5 мм оптимальное расстояние — 60 см, а для более толстых листов — 40 см. Это обеспечивает надежную поддержку и предотвращает прогибы.
-
Учет коммуникаций: При установке обрешетки важно заранее продумать расположение электрических проводов, труб и других коммуникаций. Часто рекомендуется делать специальные вырезы в обрешетке или использовать специальные короба для скрытия проводки, чтобы избежать повреждений и упростить доступ к коммуникациям в будущем.

Подготовительные работы
Предварительные этапы обязательны для любого метода.
Пошаговая инструкция:
- Очистите поверхность от ненужного. Если старый декоративный слой мешает установке каркасных элементов, удалите его.
- Оцените прочность основания. В старых зданиях может быть скрытое отслоение шпаклевки, что может привести к обрушению конструкции. При необходимости снимите облицовочный слой или укрепите его.
- Проверьте покрытие на плесень и грибок. Такие повреждения требуют полной очистки и обработки специальными средствами.
- Расширьте трещины и щели. Участки очистите от мусора, обработайте грунтовкой и заполните эластичной шпаклевкой. Обратите внимание на дефекты на несущих стенах.
- При необходимости замените дверные коробки и оконные рамы для точной установки каркаса.
- Обработайте поверхность антисептиками. Древесину дополнительно пропитайте антипиренами.
- Составьте схему расположения обрешетки с учетом особенностей основания. При необходимости спланируйте разводку коммуникаций и укладку утеплителя.
- Нанесите условную разметку в соответствии с планом для быстрого выставления деталей.
Также подготовьте материалы и инструменты в зависимости от ситуации и выбранного метода.
Монтаж деревянного каркаса
Технология установки предполагает, что перед началом работ изделия выдерживаются в помещении в течение суток. Это нужно для акклиматизации дерева, особенно при выполнении работ в холодное время года.
Схема процесса:
- Продукция предварительно обрабатывается и хорошо просушивается. Детали не должны иметь серьезных дефектов, которые могут привести к растрескиванию.
- Согласно разметке укладываются горизонтальные элементы на пол и потолок. Если требуется, то такие же изделия размещаются и на стенах. В зависимости от основания, для фиксации применяются дюбели или саморезы. Такой порядок действий позволяет получить своеобразную рамку, внутри которой монтируются остальные детали.
- По размеру подрезается и устанавливается вертикальный брус с шагом 40 или 60 см. При укладке теплоизоляции частота корректируется исходя из габаритов используемых плит.
- Крепление стоек на стену осуществляется на металлические подвесы. Альтернативный вариант – проложки из деревянных реек.
- Выставляются перемычки. Они применяются для увеличения жесткости, а также в качестве закладной для навешивания предметов.
Чтобы возвести обрешетку на смежной стене, нужно правильно выставить угол перехода. Для этого в имеющемся каркасе фиксируется вертикальный фрагмент, который будет являться боковой стойкой новой плоскости.
Устройство обрешетки из металлопрофиля
Этот метод можно реализовать самостоятельно.
Процесс выполнения работ:
- Установите направляющие по разметке, выровняйте их по уровню и отвесу. Закрепите дюбелями в подготовленных отверстиях. Для улучшения звукоизоляции обработайте спинки специальной лентой.
- Монтаж боковых элементов UD выполняется аналогично. Соедините направляющие в единую систему и закрепите саморезами по металлу.
- Установите горизонтальные профили с расстоянием 60 см для стен и 40 см для потолка. Убедитесь, что они установлены по уровню, чтобы избежать перекосов.
- Закрепите стойки CD с помощью подвесов с интервалом 40–50 см, в зависимости от прочности основания. Крепление осуществляется на дюбели.
- Уложите горизонтальные перемычки, нарезая профиль на нужные размеры. Соединение выполняется с помощью крабов. Альтернативно можно создать выступающие изогнутые участки для крепления к стойкам.
- Выполните обрешетку из профиля аналогично, учитывая угловые переходы.
Обработайте дверные и оконные проемы, установив вертикальные элементы по краям и соединяя их перемычками сверху и снизу. Для больших окон дополнительно формируйте отростки от потолочной и половой направляющих.
Внимание! При точной разметке подвесы устанавливаются заранее, что упрощает дальнейшие работы.
Советы и рекомендации
Чтобы добиться качественного результата и избежать проблем при обшивке гипсокартоном, учитываются следующие нюансы:
- Схему размещения стоек каркаса составляют от края имеющегося проема.
- Для выставления вертикальных деталей применяется натянутый шнур.
- Для более быстрого и удобного монтажа перемычек на деревянную систему используются металлические уголки.
- Профили через лицевую сторону соединяются саморезами с плоской шляпкой, чтобы исключить выпирание плит ГКЛ.
- Закладные детали удобно размещать в элементах CD.
Правильность и аккуратность – это основные правила, которыми следует руководствоваться при создании каркаса для гипсокартона.
Проверка и выравнивание обрешетки
После того как вы установили обрешетку для гипсокартона, важно убедиться, что она правильно выровнена и соответствует всем необходимым требованиям. Рассмотрим основные шаги, которые помогут вам в этом процессе.
1. Проверка вертикальности и горизонтальности
Первым делом необходимо проверить, насколько ровно установлены направляющие и стоечные профили. Для этого используйте строительный уровень. Убедитесь, что все вертикальные элементы обрешетки находятся в одной плоскости. Если вы заметили отклонения, их нужно исправить, подложив под профиль небольшие кусочки фанеры или специальные прокладки.
2. Использование лазерного уровня
Для более точной проверки можно воспользоваться лазерным уровнем. Он позволяет быстро и точно установить горизонтальные и вертикальные линии, что значительно упрощает процесс выравнивания. Установите лазерный уровень на одной из стен и проверьте, совпадают ли линии с установленными профилями. Если есть расхождения, скорректируйте положение профилей.
3. Проверка расстояния между профилями
Следующий шаг — убедиться, что расстояние между профилями соответствует стандартам. Обычно оно должно составлять 60 см, но в зависимости от типа гипсокартона и предполагаемой нагрузки это значение может варьироваться. Измерьте расстояние между соседними профилями и при необходимости отрегулируйте их положение.
4. Устранение неровностей
Если вы заметили, что некоторые участки обрешетки имеют неровности, их следует устранить. Для этого можно использовать специальные подкладки или регулировочные винты, если вы работаете с подвесными системами. Важно, чтобы вся поверхность была ровной, так как это напрямую влияет на качество монтажа гипсокартона.
5. Закрепление профилей
После того как вы убедились, что обрешетка выровнена, необходимо надежно закрепить профили. Используйте саморезы, которые подходят для вашего типа профиля и стен. Убедитесь, что саморезы не выступают за пределы профиля и не повреждают его. Правильное крепление обеспечит устойчивость всей конструкции.
6. Финальная проверка
После завершения всех работ по выравниванию и закреплению профилей, проведите финальную проверку. Убедитесь, что все элементы обрешетки надежно зафиксированы, а расстояния между ними соответствуют требованиям. Это поможет избежать проблем в будущем, когда вы будете монтировать гипсокартон.
Следуя этим рекомендациям, вы сможете создать надежную и ровную обрешетку под гипсокартон, что обеспечит качественную отделку стен и долговечность всей конструкции.
Вопрос-ответ
Можно ли прикрепить гипсокартон к стене без каркаса?
Монтаж гипсокартона на стену без профиля (каркаса) возможен при минимальных неровностях стеновой поверхности и предусматривает фиксацию листов с помощью клея. Преимущества метода в простоте и низкой стоимости.
Можно ли крепить гипсокартон на деревянную обрешетку?
Допускается применение деревянного каркаса для монтажа гипсокартона, но в большинстве случаев используется металлическая конструкция. Это связано с высокой стоимостью, большим весом, плохой устойчивостью к влаге, биологическим воздействиям древесины и ее способностью поддерживать горение.
Советы
СОВЕТ №1
Перед началом работы тщательно измерьте стены и подготовьте все необходимые инструменты и материалы. Это поможет избежать лишних затрат времени и усилий, а также обеспечит точность в процессе монтажа обрешетки.
СОВЕТ №2
Используйте уровень для проверки вертикальности и горизонтальности обрешетки. Это гарантирует, что гипсокартон будет установлен ровно, что в свою очередь предотвратит появление трещин и неровностей на поверхности.
СОВЕТ №3
При установке обрешетки учитывайте расстояние между направляющими. Обычно оно составляет 40-60 см, но лучше уточнить рекомендации производителя гипсокартона, чтобы обеспечить необходимую прочность и устойчивость конструкции.
СОВЕТ №4
Не забывайте о вентиляции. Оставляйте небольшие зазоры между обрешеткой и стеной, чтобы избежать накопления влаги и образования плесени. Это особенно важно в помещениях с повышенной влажностью, таких как ванные комнаты или кухни.




