

Главная |ГОСТы и СНиП |Оптимальные размеры отмостки: ширина, уклон, толщина
Дата: 29 ноября 2017
Коментариев: 0
После возведения здания возникает необходимость обустройства территории по его периметру. При этом важно обеспечить не только эстетическое восприятие, но и надежно защитить фундамент строения от отрицательного воздействия осадков. Согласно требованиям строительных норм и правил по контуру постройки сооружается своеобразный тротуар, размеры которого регламентированы стандартом. Это ширина отмостки, уклон, а также ряд других показателей. Соблюдение рекомендуемых размеров обеспечивает долговечность защитной конструкции.
Устройство бетонной отмостки
Так называется водонепроницаемая окантовка из бетона вокруг дома. Отмостка – часть гидроизоляции здания, примыкающая к фундаменту (цоколю). Окантовка имеет небольшой уклон от стены постройки.
Согласно нормативам между цоколем и бетонной полосой предусматривается деформационный шов толщиной 20 мм.
Бетон – это лишь «вершина айсберга». Также как полы, кровли, каркасные стены и перекрытия, отмостка из бетона – это многослойный «пирог», включающий:
- песчаную основу (подстилку) – служит для выравнивания грунта;
- гравий (щебень) – выполняет дренажную функцию и обеспечивает устойчивость бетонной плиты к внешним нагрузкам и напряжениям, вызванным подвижностью грунта;
- гидроизоляцию с заходом на стену (виды и этапы);
- бетонную заливку.
Дно траншеи выстилают геотекстилем (на чертеже ниже) – это предотвращает размывание песка и защищает подстилку от излишков влаги и проросших корней.
Если планируется армирование бетона, схема отмостки вокруг дома может содержать информацию о расположении стержней – на рисунке ниже.










Для чего выполняется согласно СНиП отмостка здания
Защитная конструкция создается для решения комплекса серьезных задач:
- защиты цокольной части здания от воздействия осадков;
- обеспечения целостности фундамента строения;
- дополнительной теплоизоляции подвального помещения;
- предохранения почвы от промерзания;
- защиты основания постройки от разрушения корнями;
- снижения затрат на восстановление фундамента;
- предотвращения вспучивания грунта;
- эффективного отвода атмосферных осадков.
Как и к любому конструктивному элементу, к ней предъявляются особые требования, которые необходимо соблюдать
Кроме того, отмостка обеспечивает следующие функции:
- удобство перемещения вокруг здания;
- привлекательный вид строения.
Рекомендуем: Стоит ли асфальтировать двор придомовой территории?
Функциональное назначение защитной конструкции обеспечивается при условии соблюдения ее размеров.
Требования к отмостке и разметка
В нормативах содержится информация о назначении отмостки, ее линейных размерах, уклоне и положении над уровнем грунта. В частности регламентированы:
Ширина ленты
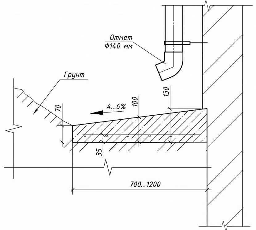
Строительные правила предусматривают зависимость между типом грунта и шириной отмостки: для песчаных грунтов это 70 см, для глинистых – 100 см. Для грунтов, склонных к проседанию, значение может достигать 2 м;
Правило «ширина отмостки должна на 20–30 см перекрывать свес кровельного материала» не подкреплено нормами. Этот совет актуален лишь при отсутствии организованного стока с крыши. Но и в этом случае соблюдать его необязательно – даже если свес будет «шире» отмостки, влага не сможет добраться до защищенного грунта «пятна застройки».
Длина
Защищать прилегающий к фундаменту грунт от влаги нужно вдоль всего периметра. «Ленту» можно прервать только в месте установки входной группы, если под крыльцо закладывается «свой» фундамент. Если крыльцо легкое, бетонная полоса пройдет под ним;
Глубина заложения (заглубление)
Глубина котлована не должна превышать половины глубины промерзания грунта, принятой при расчете фундамента. Для разных регионов параметр отличается – его можно узнать в справочных таблицах или в местном управлении градостроительства. Если глубина будет избыточной, отмостка не сможет перемещаться вместе с почвой и обеспечивать теплоизоляцию – ее роль сведется к отводу влаги;
Фактическая глубина промерзания зависит от проложенных коммуникаций и наличия в здании отопительных приборов. На надежном грунте достаточно будет котлована глубиной 30 см, а «практический максимум» – 50 см.
Толщина верхнего слоя
Обычно для отмостки заливают 100–120 мм бетона. Если планируется интенсивная эксплуатация «дорожки» (например, заезд автомобилей) толщину имеет смысл увеличить до 150 мм;
Минимальная толщина (у наружного края отмостки) с учетом уклона должна быть не менее 70 мм.
Уклон
Согласно СНиП III-10-75 диапазон величин уклона составляет 10–100 мм на 1000 мм длины (от 1 до 10%) – выбор зависит от типа грунта и объема осадков. Обычно для бетона уклон принимают равным 2–3 градусам. Можно увеличить уклон до 5 градусов, но тогда зимой заледеневшая отмостка не сможет выполнять функцию дорожки;
Высота над уровнем земли
Рекомендуется обеспечить возвышение над землей на 50 мм. На практике, с учетом заглубления и других слоев видимая толщина отмостки из бетона достигает 100 мм и более. Сравнивать «ленту» с землей не следует – на краю будет скапливаться и замерзать вода, провоцируя деформацию бетонного слоя;
Бордюр
Его устанавливают для красоты, поэтому о требованиях речи не идет – эта часть работы отдается на откуп хозяина дома. Исключение – наличие вблизи дома (менее 5 м) кустарников (ежевика, малина) или деревьев (тополь, дуб, ясень, платан): бордюр защитит бетон от растущих «вширь» корней.
Пропорции бетона для отмостки вокруг дома
Если этой информации недостаточно, имеет смысл познакомиться со следующими документами:
- СНиП 2.02.01–83 (пункты 3.182 и 4.30);
- СНиП III–10–75;
- ГОСТами 9128 –97 и 7473 –94.
Приняв к сведению теорию, можно переходить к сооружению бетонной отмостки.





Какая должна быть толщина отмостки?
Подготовка уровня качества осуществляется в несколько этапов. Сначала удаляется растительный слой. Глубина удаляемого грунта зависит от ширины карниза дома.
Если толщина растительного слоя составляет полметра, то необходимо снять полметра, если этот слой больше, например, один метр, то почву следует удалить на полметра.
Минимальная толщина снимаемого пола для лесов составляет около 40 см. После удаления поверхностного слоя почвы наносится более плотный слой глины или извести и уплотняется основание из песка, глины или мелкого гравия толщиной 5-15 см. Затем наносятся гидро- и теплозащитные покрытия.
В качестве конечных материалов часто используются асфальт, асфальт или цемент. Для определения объема работ, стоимости строительных лесов и их площади, подстилающий слой (основание) рассчитывается в кубических метрах, а наружный пол — в квадратных метрах.
Земляные работы
Первый этап – разметка траншеи при помощи колышков и бечевки. Далее алгоритм такой:
Снятие плодородного грунта – строго вручную. Если плодородный слой тонкий, вынимается толщина грунта, необходимая для размещения всех слоев «пирога» (25–50 см). Изнутри траншею можно обработать гербицидом – это защитит песчано-гравийную подушку от корней растений.
На дне траншеи не должно остаться крупных камней, корней, острых предметов. Вынутый грунт можно убирать, распределяя по территории – необходимости в нем не возникнет.
Уплотнение и выравнивание дна траншеи – уже на этом этапе должен быть сформирован уклон.
Укладка на дно геотекстиля – «ткань» нужно распределить по всей поверхности, сделав напуск на фундамент и противоположную стенку траншеи.
Если для дома рылся (а затем засыпался) котлован, то отмостка должна выходить за его пределы минимум на 40 см. Кроме этого, дно траншеи понадобится утрамбовывать тщательнее.
Если в ходе засыпки котлована или рытья траншеи повреждена гидроизоляция цоколя, на этом этапе ее нужно обновить.
Подсыпка песка и щебня
Подготовив траншею, обустраивают песчано-гравийную подушку:
- Проверяют песок на наличие глины или мусора. Если имеющееся сырье не идеально чистое, лучше потратить время на просеивание, чем получить некачественную подстилку.
- Равномерно насыпают песок поверх геотекстиля и ровняют при помощи отрезка доски, сохраняя уклон. Толщина слоя песка – 50–100 мм.
- Смачивают песок – влага должна пропитать весь слой. При «проливании» станут заметны места проседания – туда нужно подсыпать песка.
- Утрамбовывают песок – при помощи виброплиты (не вибротрамовки) или ручного деревянного инструмента, при необходимости подсыпая песка.
Трамбуя, нужно помнить об уклоне. Если после уплотнения он «исчезает», нужно подсыпать еще песка и утрамбовать еще раз.
Укладывают и трамбуют гравийный слой. После уплотнения толщина гравия должна составлять 100 мм.
При близком залегании грунтовых вод, для отмостки необходимо предусмотреть отвод влаги. Для этого в гравийном слое (в толще или по краю) укладывают дренажную трубу с перфорацией (можно завернуть трубу в геотекстиль).
Делать отмостку обычно начинают после сооружения ливневой канализации. Накопительные колодцы внутри отмостки устанавливают, соединяя с трубой, отводящей воду от основания дома.
Трубу, проложенную вдоль всего периметра, подключают к общедомовой канализационной системе при помощи дренажных колодцев.
Поверх подушки укладывают геотекстиль или мембрану.
Опалубка
Опалубку можно установить сразу после выемки грунта – тогда песок и гравий будут трамбоваться уже в ней. В примере монтаж опалубки производят по готовой «подушке».
Для съемной опалубки используют обрезную доску толщиной 25–30 мм. Ширину доски выбирают с учетом высоты бетонного слоя – до 150 мм.
Пошаговая инструкция для опалубки будет такой:
- Разметить территорию при помощи шнура (можно использовать разметку, сделанную при выемке земли).
- Установить по периметру (снаружи от шнура) деревянные колышки с интервалом 1,5–2 м.
- Установить между шнуром и колышками бортики опалубки – их можно прикрутить саморезами или прибить гвоздями. Горизонтальное положение бортиков и постоянство уклона контролируют при помощи строительного уровня.
Имеет смысл укрепить места стыка досок к колышкам и углы опалубки снаружи – при помощи деревянных или металлических «уголков».
Как правильно сделать уклон отмостки
Для того, чтобы правильно сделать необходимый уклон, во время работ стоит использовать уровень. С его помощью делается заливка бетона и дальше измеряется полученный угол уклона.
Самостоятельная заливка отмостки с созданием уклонов
Выполнить все строительные работы относительно отмостки можно без проблем самостоятельно. Для этого стоит выполнить следующие этапы.
- Произвести разметку территории вокруг дома. В выбранных точках вбиваются колышки и между ними обязательно нужно натянуть нитку таким образом, чтобы получилась ровная линия.
- На тех местах, где будет находиться отмостка, аккуратно снимается верхний слой почвы. При этом стоит учитывать то, какой глубины будет будущая конструкция. В среднем данный показатель составляет 25 сантиметров.
- После того, как будет вырыта траншея, нужно внимательно осмотреть ее дно и удалить все присутствующие корни. Дополнительно дно обрабатывается специальными средствами, которые не позволят прорастать растениям. В противном случае конструкция со временем может быть разрушена.
- Дальше собирается опалубка. Щиты изготавливаются из необрезной доски. Ее толщина должна быть больше двух сантиметров. Щиты необходимо установить по всему периметру подготовленной траншеи.
- Затем необходимо выложить в траншею подушку из подготовленного материала. В большинстве случаев используется песок. Слой должен быть более 5 сантиметров.
- В последнюю очередь устанавливается каркас из качественной арматуры и заливается бетон, слой которого будет идти под определенным углом.
Сделать конструкцию для защиты дома от влаги самостоятельно не составит никакого труда.
Главное, правильно рассчитать ее размеры и подготовить качественные материалы, а также поэтапно выполнить совершенно все работы.
Синхронизация уклонов с системой водоотведения воды
В обязательном порядке вокруг дома устанавливается дренажная система, которая отвечает за отведение лишней воды с участка. Отмостка должна быть синхронизирована с данной системой для того, чтобы лишняя влага не навредила постройке и не начала постепенно разрушать фундамент дома. Поэтому расстояние от труб системы водоотведения до конструкции вокруг дома должно быть минимальным.
Гидроизоляция
Строго говоря, бетон не должен пропускать влагу без дополнительных мер. Однако даже правильная заливка отмостки не гарантирует отсутствия повреждений и трещин – в таких случаях подушку и грунт защитит гидроизоляционный слой.
Проще использовать для гидроизоляции рулонный материал (гидроизол или гидростеклоизол) – его укладывают внахлест, промазывая швы мастикой.
Однако существуют альтернативные варианты:
- рубероид – бюджетный рулонный материал и его аналоги типа рубемаста;
- битумные мастики (холодные или горячие)– их можно использовать как самостоятельный изолят или в качестве клея для рулонного материала;
- гудрон;
- полипропиленовая пленка;
- современные битумно-полимерные материалы – унифлекс, техноэласт;
Геотекстиль в гидроизоляции используют лишь для укрепления слоя основного изолята – геоткань может лишь фильтровать воду, но не задерживать ее.
Независимо от выбора материала, следует соблюдать правила укладки или нанесения. Гидроизоляция отмостки – это часть гидроизоляции цоколя: изолят заходит на стенку фундамента, край «приклеивается» и замазывается мастикой.
Уложив изолят в опалубку, можно приступать к обустройству компенсационных швов и армирующего каркаса.
Армирование
Усиление бетона не прописано в нормативах, однако металлическая арматура:
- повысит прочность на сжатие и растяжения – снизит риск растрескивания бетона при проседании, смещении грунта или изменении веса здания (при возведении надстроек или замене кровли);
- придаст дополнительную жесткость;
- упростит ремонт бетонной ленты в будущем.
Для армирования лучше купить готовую сетку размером 50*50*5, 100*100*4 и 150*150*8 – чем больше диаметр прута, тем больше размер ячейки.
Каркас можно сделать самостоятельно, нарезав и уложив перпендикулярно металлический прут толщиной от 4 до 16 мм, с ячейками от 100 до 200 мм. Скрепляют прут при помощи вязальной проволоки.
Оптимально, чтобы сетка была приподнята над поверхностью на 1–2 см – этого добиваются, устанавливая специальные вставки.
Правила укладки:
- Сетку кладут в 1 слой – нахлест делают только на стыках.
- Начинают с прямых участков – углы усиливают в последнюю очередь с помощью специально вырезанных «угловых» фрагментов сетки.
- Не используют прут или сетку разной толщины.
Гидроизоляция отмостки вокруг дома: виды и этапы
Армирующую сетку не стоит крепить к фундаменту – при усадке это лишь ускорит образование трещин.
Какие материалы применяются при армировании
Сетка для отмостки представлена на рынке в различных вариантах. Она отличается по конструкции. Размер ячеек зависит от выбранного типа. Эти нюансы влияют на качественные характеристики материала.
Стандартная
Стандартная сетка со средним размером ячеек применяется не только для фундамента. Отмостка, армированная таким материалом отличается хорошей прочностью, надежностью и долговечностью. Стержни переплетаются под прямым углом. Размер ячеек составляет 6-7 см.
Рекомендуем: Сарай для дачи — 100 фото
Геотекстильная
Инновационный материал, получивший распространение в последние годы, – геотекстильная сетка. Стоимость этого варианта немалая, поэтому его рационально использовать только при наличии определенных условий, к примеру при проведении работ в сейсмически опасных зонах, а также при обустройстве конструкций на рыхлом грунте.
Металлическая
Металлическая сетка превосходит предыдущие по прочностным характеристикам и эксплуатационным качествам. Распространенное использование арматуры из металла обусловлена рядом преимуществ:
- устойчивость к воздействию окружающей среды;
- неподверженность коррозии;
- противостояние химическому влиянию;
- простота эксплуатации и хранения;
- длительный срок службы.
Прочность и надежность материала обусловлена использованием качественного металла, который подвергается цинкованию для улучшения эксплуатационных параметров.
Классическая
Классический вариант отличается легкостью, что уменьшает нагрузку на основание. Сетка имеет вид перпендикулярно сваренной проволоки. Такой материал универсален, может применяться при укладке конструкций из кирпича и при заливке бетонной стяжки.
Устройство деформационных швов
Основная функция швов – компенсация температурных деформаций бетонного слоя, приводящих к:
- неравномерной усадки и трещинам;
- нарушению уклона.
Деформационный шов вдоль фундамента создают при помощи :
- захлеста рулонной гидроизоляции;
- укладки досок или утеплителя (пеноплекса).
Радиальные швы делают, разделяя бетон на секции при помощи деревянных досок или реек толщиной до 2 см. При этом следуют таким рекомендациям:
- выдерживают расстояние между швами на прямых участках – от 1 до 2,5 м;
- в углах шов располагают диагонально – на рисунке ниже.
- доски устанавливают, используя уровень и подгоняя под уклон отмостки – на них ориентируются при заливке.
Доски желательно обработать антисептиком, обмазать смолой или мастикой.
Часто именно отсутствие швов приводит к растрескиванию бетона после первых перенесенных отрицательных температур.
Деревянные доски у многих не вызывают доверия – считается, что они будут пропускать влагу и разбухать. Однако эта проблема решается так:
- После схватывания доски вытаскивают и заменяют набухающим шнуром.
- Для красоты заделывают швы специальными полиуретановыми герметиками (мастиками) типа Isoseal или Тэктор.
Приготовление бетонного раствора для отмостки
Для обустройства отмостки обычно используют бетон марки М200 (класс прочности В15). Бетон можно замесить самостоятельно, подготовив необходимые компоненты:
- цемент. Марка и прочность бетона определяется маркой цемента и количеством связующего в пропорциях смеси. Для бетона марки М200 потребуется сырье, марочная прочность которого вдвое выше прочности бетона – портландцемент М400;
-
Цемент должен быть свежим – за месяц хранения вяжущее теряет пятую часть прочности. Проверить свежесть навала цемента просто – зажать горсть в кулаке и разжать пальцы. Если на ладони останется плотный комок, сырье залежалось, а если шарик рассыплется – из цемента можно смело замешивать бетон.
- песок. Он должен быть чистым, без примесей глины, пыли или органического мусора. Не следует использовать мокрый песок – эту влагу сложно учесть при составлении пропорции смеси;
- щебень. Для достижения нужной прочности достаточно щебня мелкой фракции – бетон с таким «каркасом» можно замесить даже без бетономешалки;
-
Использовать гальку вместо щебня или гравия не стоит – гладкие камушки каркасной функции не выполнят.
- вода. Основное требование здесь – чистота, отсутствие органических и технических примесей;
- добавки. Самые ходовые присадки – противоморозные, гидроизоляционные и пластификаторы.
Для замеса потребуется минимум инструментов:
- лопата;
- пластиковое ведро;
- корыто или бетономешалка.
Типовые пропорции раствора приведены в таблице.
Для цемента М400 пропорции будут отличаться. Согласно СНиП 82-02-95 состав смеси зависит также от фракции щебня и наличия присадок.
Первую порцию бетона лучше замешивать, добавляя компоненты в таком порядке:
- Весь песок.
- Цемент.
- Вода – часть расчетного объема.
- Щебень.
- Оставшаяся вода – с контролем пластичности.
Главное – не переборщить с водой: прочность разбавленного бетона будет намного ниже расчетной. Готовый раствор должен быть «гладкой», удобной для укладки консистенции. Пробным методом готовят первую порцию бетона – для заполнения одной ячейки отмостки. Зная точный расход воды, следующие «партии» замешивают по другой схеме:
- Смешать весь цемент и всю воду для получения цементного «молочка», при необходимости ввести присадки.
- Порциями, перемешивая, добавить песок.
- Засыпать весь щебень.
Изготовление отмостки: подготовка материала
Марка является показателем качества бетона. От этого значения в пределах от 100 до 1000 зависит, какими характеристиками будет обладать конструкция. Упомянутые цифры говорят о содержании цемента в растворе. Класс смеси может находиться в пределах от В3,5 до В8 и обозначает прочность. Например, раствор класса В15 указывает на то, что на куб заливки можно оказывать давление в 15 МПа. Это верно для конструкции с размерами, равными 15 х 15 х 15 см.
Вас может заинтересовать еще и вопрос о том, какая марка бетона нужна для отмостки. Обычно для этого берется цемент марки М200, который соответствует классу В15. Параметры бетона зависят от его марки. Они определяются составляющими. Для устройства нижнего слоя понадобится песок, который ляжет в основу подушки. Он может быть карьерным или речным. Главное условие при этом, чтобы материал не содержал крупных примесей, которые могли бы повредить геотекстиль.
Для отмостки лучше использовать щебень фракции в пределах от 10 до 20 мм. Это может быть гравий. Для устройства гидрозамка понадобится геотекстиль или глина. Этот слой в подушке отсутствует, ведь бетон отлично справляется с отведением воды. Для железнения нужно использовать цемент.
Укладка бетонной смеси
Заполнять опалубку бетоном можно двумя способами:
- вручную – при помощи ведра или совковой лопаты;
- прямо из мешалки – через сливной лоток.
Выгрузив порцию бетона, необходимо:
- разровнять раствор мастерком, убирая впадины;
- уплотнить методом вибрирования.
При уплотнении из смеси удаляются лишний воздух и вода, не связанная с цементом. Уплотнять отмостку из М200 трамбованием нецелесообразно.
При отсутствии вибратора слой можно уплотнить штыкованием. Для работы потребуется металлический стержень массой около 3 кг. Найдя подводящую арматуру, действуют так:
- Втыкают стержень в бетон вибрирующими точками, словно «прокалывая» слой.
- Раскачивают прут из стороны в сторону, имитируя вибрирование уложенной массы.
- Извлекают арматуру наружу, также придавая пруту горизонтальную и вертикальную вибрацию.
Штыковать каждую ячейку нужно по спирали, от опалубки к центру. На каждые 10 кв. см бетона должен приходится 1 «укол» арматурой.
Защитные меры после укладки бетона
После уплотнения необходимо обеспечить бетону условия для набора прочности. После заливки для поддержки оптимальной влажности и температуры рекомендуется:
- Увлажнение бетона через каждые 8 часов – в течение 3–7 дней;
- Покрытие фанерными щитами либо прислоненными к стене над отмосткой под углом листами шифера.
Если возможности постоянного увлажнения нет, можно просто укрыть его полимерно пленкой толщиной не менее 200 микрон. Стыки пленки следует герметизировать при помощи скотча или клейкой ленты ПВХ.
При неправильном уходе за бетоном увеличивается риск трещин и деформаций, снижается итоговая прочность.
Опалубку (если в ней нет дефектов) можно снимать, когда бетон наберет 70% прочности – через 14 дней.
Печатный бетон своими руками: легко!
Защита бетонной отмостки от разрушения
Через 20–30 дней бетон наберет прочность и отмостка будет готова к эксплуатации в качестве гидроизоляционной ленты и дорожки. Однако даже при правильной технологии укладки со временем могут появиться:
- трещины;
- зоны проседания или вспучивания;
- раскрошившиеся края.
Предотвратить изменения поверхностного слоя помогут следующие меры.
Железнение
Защитит от трещин, повысит твердость и улучшит гидроизоляцию бетонной ленты.
Вопреки названию, процедура никак не связана с железом – для обработки потребуется только цемент.
Железнение может проводиться двум методами:
- сухое. Обработку производят сразу после заливки, пока бетон еще сохранил естественную влажность и пористость. Поверх отмостки насыпают ровный слой цемента толщиной 2 мм и тщательно его затирают. Цемент быстро «въедается» – по бетону можно ходить (но не эксплуатировать на 100%) уже через 2 часа;
- мокрое. Заключается в покрытии бетона жидким цементным раствором (цемент плюс песок в равных долях). Дополнительно в смесь нужно добавить известковое тесто – 10-ю часть от общего объема раствора. Этим составом бетон обрабатывают после набора прочности – через 2 недели после заливки.
Подробнее, что это такое и как сделать железнение своими руками.
Покрытие грунтовкой
Защищает бетон от влаги, грибка и плесени, увеличивает прочность и износостойкость верхнего слоя.
Если планируется покрывать бетон краской или укладывать плитку, подойдут:
- грунтовки-пропитки (пропитывают бетон на 50 мм);
- грунтовки глубокого проникновения (упрочняют верхний слой толщиной 5–7 мм).
Если финишного покрытия не предусмотрено, следует выбирать грунтовку или пропитку с гидрофобизирующими свойствами. Ценовой диапазон таких средств – от 200 руб./л за ГКЖ-11 до 300 руб./л за Аквасол или Eskaro Aquastop Proffessional.
Ассортимент пропиток, уплотняющих бетонный слой, широк:
- Протексил – около 50 руб. на кв. м;
- Монолит 20М – около 70 руб. на кв. м;
- Monopol 1 – около 100 руб. на кв. м.
- Бетоноконтакт
Импортные составы типа Ashford Formula повышают прочность, износо- и морозостойкость, устраняют скольжение. Однако обойдутся они дороже и купить их можно не везде.
Защита жидким стеклом
Жидкое стекло можно не только вводить в состав бетона или цементного раствора при замесе, но и использовать как защитное покрытие.
Стоимость жидкого стекла – от 30 до 60 руб. за кг. Среди прочих плюсов – малый расход, быстрота высыхания, отличные влагозащитные свойства.
Состав обмазочного раствора прост – нужно смешать равные части цемента, воды и жидкого стекла. Наносить массу нужно быстро, выравнивая слой мастерком или шпателем. Подробнее.
Покрытие слоем эмали
Эмали – полиуретановые, акриловые – создают влагонепроницаемую пленку и повышают прочность поверхностного слоя. Работать с эмалью удобно – ее просто наносят валиком.
Инструкция к эмали может предусматривать предварительное грунтование.
При активной эксплуатации защитный слой быстро изнашивается – покрытие потребуется обновлять чаще. Здесь выбор краски по составу и видам работ.
Облицовка плиткой, камнем
Облицовку тротуарной плиткой, керамогранитом или клинкером нужно предусмотреть заранее, планируя заглубление и конструкцию отмостки из бетона в целом.
Плитка украсит бетонную отмостку и защитит ее от механического износа и влаги.
При укладке порядок действий такой:
- Обустроить гидроизоляцию бетона – рулонную или пропитку.
- Уложить песчаную базу толщиной 3–4 см и разровнять.
- Положить плитку.
- Затереть швы цементным раствором.
- Установить бордюр с учетом высоты отмостки
- Полить покрытие водой – чтобы уплотнить цементно-песчаный раствор и запустить процесс отвердевания.
Подробнее можно прочитать в этом материале.
Почему выбирают тротуарную плитку?
Несмотря на то, что бетонное защитное покрытие обходится дешевле, многие домовладельцы кладут отмостку из тротуарной плитки. Это происходит из-за того, что у плитки:
- большой срок эксплуатации с сохранением первоначального вида;
- есть возможность устройства отмостки без использования специальной строительной техники;
- технология исключает укладку армирующего каркаса;
- простота ремонта, демонтажа и обратного монтажа без лишних затрат;
- прекрасный внешний вид и возможность подобрать желаемый цветовой оттенок поверхности.
Кроме этого, технология устройства такой отмостки позволяет выполнить все работы самостоятельно, не привлекая дополнительных помощников. Таким образом можно уменьшить затраты и делать это покрытие в свободное время.
Что нужно для выполнения работы?
Для работ по устройству отмостки из тротуарной плитки вам будут нужны материалы:
- цветная или серая плитка, равная по общей своей площади поверхности отмостки, которую предварительно необходимо будет измерить и посчитать;
- рулонная гидроизоляция или плотная полиэтиленовая пленка на покрытие полуторной площади отмостки;
- геотекстиль, по площади равный размерам гидроизоляции;
- бордюрный камень на весь периметр внешнего края отмостки;
- песок, карьерный или речной;
- цемент марки не менее М300;
- щебень;
- глина обыкновенная;
- водосточные коллекторы.
В том случае, если вы будете производить работы самостоятельно, то вам потребуется набор инструментов, в который входят:
- измерительная рулетка длиной не менее 5 метров;
- колышки и капроновый шнур;
- строительный уровень;
- штыковая и совковая лопаты;
- резиновый молоток;
- мастерок;
- емкость для замешивания раствора и бетона.
После того, как вы закупите все необходимые материалы и подготовите инструменты, можно начинать работы. Ход работ и описание его этапов вы сможете посмотреть на прилагаемом видео в конце материала.
Подготовительные работы
Для качественной укладки очень важно правильно подготовить основание. Для этого, прежде всего, нужно снять поверхностный грунт по всей площади, которую занимает отмостка дома, а это значит, что необходимо разметить площадь будущего защитного покрытия.
Ширина покрытия должна быть не менее 60 см, но рекомендуется делать настил от одного метра до полутора. Дело в том, что чем шире полоса, тем удобнее ходить по ней, а эффективность защиты от воды пропорциональна ширине отмостке. Но нужно помнить, что излишняя ширина приведет к дополнительным финансовым затратам.
Используя рулетку, отмерьте от стены возле угла здания расстояние, равное выбранной вами ширине отмостки и забейте в землю колышек. Возле другого угла повторите действие. Натяните между колышками шнур и вы увидите, где нужно снимать грунт.
Земляные работы
После разметки необходимо убрать грунт с места производства работ. Глубина раскопа складывается из толщины плитки и 30 сантиметров на обустройство основания под укладку. В итоге получается, что снимать грунт нужно фактически почти на штык лопаты.
Первым слоем в выкопанную траншею укладывается слой глины, толщиной 8-10 см. Желательно при ее укладке сделать уклон в сторону от дома. Это обеспечит лучший отвод воды в сторону. Глину необходимо хорошо утрамбовать. Сделать это можно при помощи специального строительного механизма или вручную — трамбовкой или совковой лопатой.
Поверх глины насыпается слой песка толщиной не менее 5 см и трамбуется так же, как и глина — под уклоном от здания.
Гидроизоляционные работы
Сама по себе укладка гидроизоляционного слоя не занимает много времени. В качестве гидроизоляционного материала можно стелить рубероид, гилроизол или прочную полиэтиленовую пленку.
Гидроизол и рубероид долговечны и надежны, но полиэтилен стоит меньше и проще укладывается. Но, несмотря на дешевизну полиэтилена и на то, что очень многие люди используют именно его, следует сделать выбор между хорошим качеством, долговечностью и низкой ценой. Нужно просто раскатать рулоны по поверхности, отрезая необходимую длину. Прилегающий к стене край загибается с небольшим подъемом по поверхности.
Установка бордюра
После гидроизоляционных работ нужно установить бордюр таким образом, чтобы отмостка вокруг дома из тротуарной плитки была строго ограничена и не имела горизонтальных подвижек. Линия его установки определяется шириной плитки и должна быть кратна ее размеру. Траншея для установки бордюрного камня должна быть шире его на 20 см.
Теперь нужно замесить цементный раствор со щебнем из расчета 1 часть цемента, 3 части песка и 4 части щебня. Часть бетона выстелить в траншею и поставить на него бордюр, а остальной бетон забросать в пустое пространство между землей и бордюрным камнем.
При установке бордюрного камня необходимо постоянно промерять высоту его положения с помощью уровня или нивелира.
Устройство основы
На гидроизоляционный слой следует насыпать слой песка толщиной около пяти сантиметров. Этот слой необходимо тщательно выровнять и утрамбовать. Если песок сухой, то нужно его смочить, иначе вы просто не сможете хорошо сделать его укладку и трамбовку. Для выравнивания песка можно использовать простой отрезок фанеры с ровным краем.
Следующим слоем (см. фото), толщиной 8-10 см, должен быть утрамбованный щебень. По щебню опять насыпается слой песка толщиной до пяти сантиметров.
После этого все слои одновременно должны быть пролиты водой и хорошо утрамбованы.
На этом подготовительные работы с устройством основания считаются законченными.
Кладка плитки
Начинать кладку лучше всего с угла дома. При кладке старайтесь подгонять отдельные плитки как можно плотнее друг к другу. Если это не получается, то определите для себя допустимый зазор и вставляйте между плитками пластиковые крестики или просто деревянные щепки. Зазоры позволят вам сделать кладку ровной независимо от качества материала.
После того, как вся тротуарная плитка для отмостки вокруг дома уложена, замешайте раствор в пропорции одна часть цемента на три части песка для последующей фиксации плиточного покрытия. Раствор нужно сделать густым, поскольку жидкая смесь быстро отдаст воду и качество раствора снизится.
Объем заготовленной смеси не должен превышать необходимое в данный момент количество (ориентировочно для укладки двух десятков плит). Если сделать больше, то раствор со временем начнет осаживаться и густеть, а его раскладка станет затруднительной. Согласитесь, вы же не сразу реализуете весь заготовленный объем.
Снимите с песка один ряд уже уложенной плитки и положите на песок слой приготовленного раствора. Толщина слоя должна быть не менее трех сантиметров. При кладке старайтесь, чтобы слой раствора возле здания был немного толще. Это позволит создать необходимый уклон для более эффективного скатывания воды.
Теперь положите плитку на то место, где она была до этого, но уже на подготовленный цементный раствор. При кладке используйте резиновый молоток, пристукивая плитки для посадки их на место по уровню. Можно использовать ровную и прочную деревянную рейку, при помощи которой легко выровнять несколько плиток одновременно.
Продолжайте класть плитку по рядам, но не снимайте одновременно более одного ряда. Для проверки качества кладки используйте строительный уровень. В горизонтали ряды должны быть уложены идеально, а в линии перпендикулярной стене дома с небольшим уклоном от него. Такая технология кладки обеспечивает ровную поверхность с уклоном, позволяющим беспрепятственный сход воды.
Сроки после укладки
Когда вы уложили тротуарную плитку на песчано-цементное основание ей нужно дать срок не менее двух дней, чтобы выстоятся. В это время на нее нельзя наступать и ставить тяжелые предметы. Полное время схватывания цементного раствора происходит в среднем за две недели в зависимости от температуры наружного воздуха и его влажности.



































