Монтаж гипсокартона — ключевой этап отделки, позволяющий создать ровные стены и потолки, а также реализовать дизайнерские идеи. В статье рассмотрим основные методы монтажа гипсокартона, их технологии и нюансы, что поможет выбрать подходящий способ для вашего проекта. Знание различных подходов упростит работу и поможет избежать распространенных ошибок, обеспечивая качественный и долговечный результат.
Методы установки гипсокартона
Для выполнения задач нужно заранее выбрать подходящее технологическое решение, учитывая конкретные условия.
Эксперты в области строительства отмечают, что монтаж гипсокартона требует тщательного подхода и знания различных технологий. Существует несколько методов, каждый из которых имеет свои особенности и нюансы. Например, каркасный метод, при котором гипсокартон крепится к металлическому или деревянному каркасу, обеспечивает надежность и долговечность конструкции. Однако важно правильно рассчитать расстояние между стойками, чтобы избежать деформаций.
Существуют также бескаркасные технологии, такие как монтаж на клеевой основе. Этот метод позволяет сократить время работы и избежать лишних затрат на материалы, но требует идеальной подготовки стен. Эксперты подчеркивают, что выбор метода монтажа зависит от конкретных условий и требований проекта. Важно учитывать не только эстетические, но и функциональные аспекты, такие как звукоизоляция и теплоизоляция. Правильный выбор технологии монтажа гипсокартона может значительно повысить качество и срок службы отделки.

Металлический профиль или деревянный брус?
Возведение каркаса – самый популярный способ укладки плит ГКЛ. Дело в том, что обрешетка обеспечивает получение ровной плоскости, на которой можно легко закрепить обшивку. К тому же такой вариант позволяет проводить работы на основаниях, имеющих значительные перепады высот и деформации.
Для устройства каркасной системы используются два основных материала: деревянный брус и металлический профиль. В большинстве случаев предпочтение отдается второму варианту. Это объясняется следующими достоинствами:
- Долговечность. Конструкция имеет продолжительный срок службы, при правильной установке он составляет десятки лет.
- Надежность. Система крепежа включает специальные комплектующие, обеспечивающие жесткость основания.
- Устойчивость к высокой влажности и перепадам температуры. Детали для обрешетки покрыты специальным напылением, защищающим от пагубного воздействия непостоянных условий.
- Простота возведения. Укладка происходит по стандартной схеме, поэтому для установки не требуется иметь специальные знания или использовать сложное оборудование.
- Широкий диапазон применения. Металлические изделия подходят для всех типов оснований при условии правильно подобранных крепежей.
Деревянный брус используется преимущественно для деревянных стен. При работе с продукцией необходимо соблюдать многочисленные условия: сухость деталей, отсутствие кривизны, защитная обработка. В противном случае получаемая конструкция в дальнейшем может деформироваться.
На заметку! При покупке профилей нужно обращать внимание на толщину стали: она должна быть не менее 0,5 мм.
| Метод монтажа | Технология | Нюансы и особенности |
|---|---|---|
| Монтаж на металлический каркас | Создание каркаса из оцинкованных профилей (CD, UD, CW, UW) с использованием подвесов и саморезов. Крепление листов ГКЛ к каркасу саморезами. | Необходимость точных замеров и разметки. Учёт звуко- и теплоизоляции при заполнении каркаса. Выбор профилей в зависимости от нагрузки и типа помещения. Правильное крепление листов для предотвращения деформации. |
| Бескаркасный монтаж | Крепление листов ГКЛ непосредственно к основанию (бетон, кирпич) с использованием клея или дюбелей. | Требует идеально ровного основания. Выбор клея в зависимости от материала основания и типа ГКЛ. Учёт веса листов при выборе клея и количества дюбелей. Сложность работы на больших площадях. |
| Комбинированный монтаж | Сочетание каркасного и бескаркасного методов. Например, каркас в местах с неровностями, а на ровных участках – клей. | Позволяет оптимизировать расход материалов и трудозатраты. Требует высокой квалификации исполнителя для грамотного сочетания методов. Необходимо учитывать совместимость материалов. |
Интересные факты
Вот несколько интересных фактов о методах монтажа гипсокартона:
-
Методы крепления: Существует два основных метода монтажа гипсокартона — на каркас и бескаркасный. В первом случае гипсокартон крепится к металлическому или деревянному каркасу, что позволяет создавать сложные конструкции и обеспечивает хорошую прочность. Во втором случае панели могут монтироваться непосредственно на стены или потолок с использованием специальных клеевых составов, что упрощает процесс и сокращает время установки.
-
Звукоизоляция и теплоизоляция: При монтаже гипсокартона можно использовать различные технологии для улучшения звуко- и теплоизоляции. Например, между слоями гипсокартона можно вставлять минеральную вату или специальные звукоизоляционные маты. Это позволяет значительно снизить уровень шума и повысить энергоэффективность помещений.
-
Финишная отделка: Гипсокартон можно не только окрашивать, но и обклеивать обоями, что делает его универсальным материалом для отделки. Однако для достижения идеального результата важно правильно подготовить поверхность — зашпаклевать швы и стыки, а также отшлифовать поверхность. Это требует определенных навыков и знаний, чтобы избежать появления трещин и неровностей после завершения отделки.

Плюсы и минусы бескаркасной обшивки
Гипсокартон можно устанавливать не только на каркас, но и непосредственно на поверхность с помощью клея. Этот метод имеет несколько преимуществ:
- Минимальные потери пространства. Каркас занимает 5–8 см, что критично в небольших помещениях.
- Быстрота монтажа. Укладка занимает меньше времени, особенно на слегка неровных поверхностях.
- Экономия средств. Такой подход снижает затраты на каркасную конструкцию.
Однако у этого метода есть и значительные недостатки:
- Обшивка возможна только при нормальной влажности. Клеевые составы теряют прочность при наличии влаги в стенах или помещении.
- Невозможность скрыть коммуникации. Этот способ не позволяет прокладывать системы внутри стен.
- Сложности с сильно неровными поверхностями. Установка гипсокартона на стены с отклонениями более 4–5 см требует создания специальных маяков для ровной фиксации, что требует значительных усилий и навыков.
Технология бескаркасной отделки позволяет использовать различные клеящие составы, которые должны быть подобраны в зависимости от конкретного основания.
Монтаж плит ГКЛ на стену с профилем
Для правильного выполнения работ следует соблюдать технологию.
Инструменты и материалы
Подготовка материалов и инструментов должна проводиться заранее, чтобы избежать задержек в процессе работы.
Вот перечень необходимых элементов:
- Профили: направляющие (ПН) и стоечные (ПС).
- Комплектующие для каркасных конструкций: подвесы и крабы.
- Саморезы для металлических частей и гипсокартонных листов, дюбели для стен.
- Гипсокартонные плиты выбираются в зависимости от характеристик помещения.
- Брус с сечением 40×50 мм и специальные шурупы (гвозди) для деревянного каркаса.
- Реечный уровень и, по возможности, лазерный уровень.
- Перфоратор и набор буров.
- Шуруповерт с комплектом бит.
- Молоток.
- Отвес и шнур.
- Строительный нож.
- Ножницы по металлу или ножовка. В качестве альтернативы можно использовать электрический лобзик с различными пилками.
Материалы подбираются в зависимости от метода, а инструменты проверяются на работоспособность.
Возведение обрешетки из металлопрофиля
Собрать конструкцию можно по следующей пошаговой инструкции:
- Выполняется подготовка основания. Нужно исключить проблемы, которые могут проявиться в дальнейшем.
- Проводится разметка. Для этого определяется наибольшая выступающая точка отклонения, от нее отбивается расстояние, которое должно учитывать удобство размещения профилей, наличие теплоизоляции или коммуникаций. Согласно полученным данным на потолке чертится линия, от которой спускается отвес для определения нижней разметки.
- Расчерчивается основание под вертикальные детали и подвесы. Для удобства расчета выбирается оптимальный шаг между стойками 40 или 60 см.
- Устанавливать обрешетку следует с укладки направляющих: сначала выставляется верхняя и нижняя, а потом боковые. Получившаяся рамка фиксируется саморезами или дюбелями. Чтобы исключить проникновение звука, на спинку профиля приклеивается уплотнительная лента.
- Далее нужно поставить стойки согласно разметке. Для этого элементы заводятся в ПН и выравниваются по натянутому шнуру. ПС крепится саморезами к подвесам. Постоянно проводится проверка по уровню.
На конечном этапе устраиваются перемычки, для создания которых используются отрезки стоечного профиля.
Внимание! После основных процедур прокладываются системы коммуникаций. Некоторые ПС оснащаются специальными отверстиями для удобства размещения проводов.
Устройство каркаса из деревянного бруса
Монтировать обрешетку следует в следующем порядке:
- Провести подготовительные работы, описанные ранее.
- Проверить качество материала. Все элементы, обработанные антипиренами и антисептиками, должны быть тщательно высушены. Нельзя допускать трещин или серьезных повреждений, влияющих на прочность конструкции.
- Уложить элементы обвязки на потолке, полу и смежных стенах.
- Установить вертикальные стойки с интервалом 40–60 см, используя металлические уголки. Для надежности можно выполнить прямое крепление, вбивая гвозди под углом.
- Уложить перемычки. На один сегмент должно приходиться не менее 4–5 элементов.
Для создания обрешетки вокруг оконного или дверного проема, независимо от материала, устанавливаются стойки по краям, соединенные горизонтальными отрезками на уровне верхней и нижней части проема. Для повышения прочности их дополнительно укрепляют вертикальными элементами, фиксируемыми к направляющим или брусу обвязки.
При монтаже каркаса учитывайте расположение труб или радиаторов отопления, оставляя пространство для экрана.
Установка гипсокартона
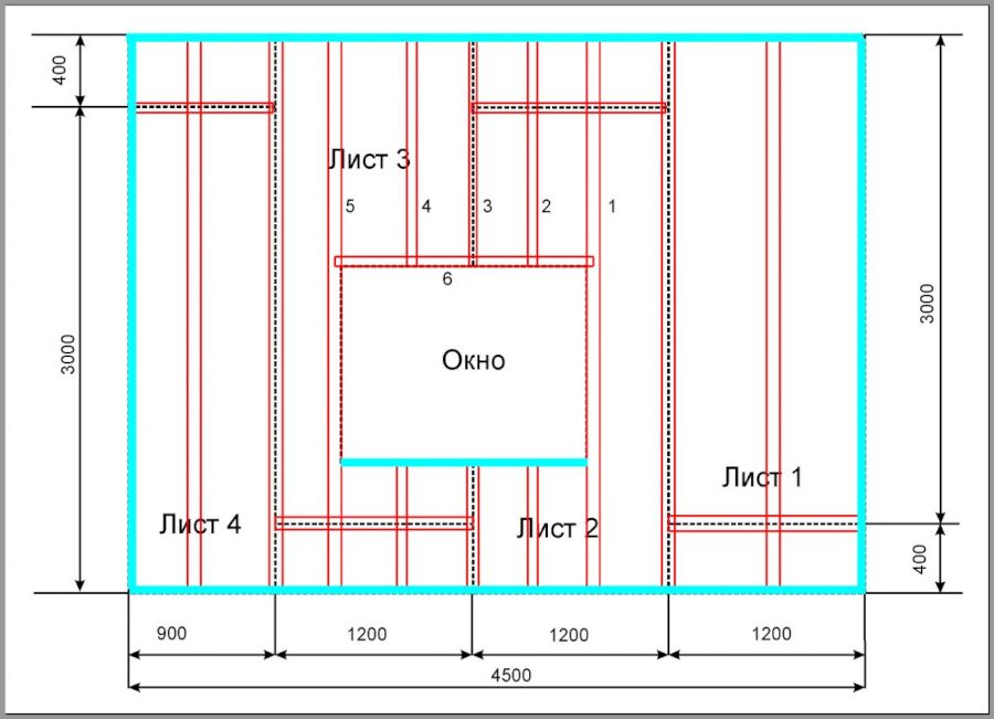
Укладывать плиты ГКЛ можно в продольном или поперечном направлении. Первый вариант является более предпочтительным. Технология процесса:
- Если высота потолков больше длины листов, то предварительно составляется схема. Секрет надежного расположения в том, что детали стыкуются в шахматном порядке. Не рекомендуется разбивать поверхность больше чем на два отрезка.
- Ставить плиты начинают от угла или от проема. Если изделия не имеют фаски, то край подрезается своими руками так, чтобы при совмещении двух элементов получалась буква V.
- Формируются зазоры. От пола и потолка – 10 мм, между смежными отрезками – 3–5 мм.
- Монтаж ГКЛ осуществляется на специальные саморезы. Их необходимо крутить на удалении 15 мм от края с шагом 15–25 см.
- Шляпки шурупов утапливаются заподлицо на 1 мм. Чтобы добиться такого результата и избежать порчи точек фиксации, применяется бита с ограничителем.
- После того как основное пространство заполнено, необходимо состыковать небольшие фрагменты над или под проемами. Для этого участки замеряются, а из оставшихся кусков вырезаются нужные детали.
Класть плиты целесообразно с помощником, чтобы исключить искривления, особенно при выставлении зазоров.
Правила укладки гипсокартонных листов без профилей
Для укладки гипсокартонных листов без обрешетки следует учитывать несколько моментов:
- Проведите тщательную подготовку основания: удалите старое покрытие, если оно плохо держится, заделайте все щели и трещины, проверьте поверхность на плесень и грибок.
- Нанесите грунтовку минимум в два слоя, давая основанию высохнуть после каждого.
- Выравнивание стен гипсокартоном без каркасной конструкции осуществляется с помощью специальных смесей, жидких гвоздей или шпаклевочных растворов с минеральными или полимерными добавками.
- Для прикрепления плиты к стене с минимальными отклонениями наносите состав на изнаночную сторону сплошным слоем, а в местах значительных неровностей — точечно.
- Прижмите элемент к стене и удерживайте его некоторое время, выровняв по уровню.
- Устанавливая следующий лист, обеспечьте совпадение плоскостей и оставьте зазоры.
Хотя процесс несложный, он требует внимательности, чтобы избежать проблем в будущем. Тщательное выполнение этапов станет хорошим опытом для других ремонтных задач.
Технология монтажа гипсокартона на потолок
Монтаж гипсокартона на потолок – это один из наиболее распространенных способов отделки, который позволяет не только скрыть недостатки поверхности, но и создать оригинальные дизайнерские решения. Процесс монтажа требует внимательности и соблюдения технологии, чтобы обеспечить долговечность и эстетичный вид конструкции.
Перед началом работ необходимо подготовить все необходимые инструменты и материалы. Вам понадобятся:
- Гипсокартонные листы (обычные, влагостойкие или огнестойкие в зависимости от назначения помещения);
- Металлический или деревянный каркас;
- Саморезы по гипсокартону;
- Перфоратор или дрель;
- Уровень и рулетка;
- Нож для гипсокартона;
- Шпатель и шпатлевка для финишной отделки;
- Лестница или строительные подмости.
Первым этапом является разметка потолка. С помощью уровня и рулетки необходимо определить уровень, на котором будет располагаться каркас. Для этого можно использовать лазерный уровень, который значительно упростит задачу. Разметка должна быть четкой, так как от нее зависит, насколько ровно будет установлен гипсокартон.
После разметки устанавливается каркас. Если используется металлический каркас, то профили крепятся к потолку с помощью дюбелей и саморезов. Важно соблюдать шаг между профилями, который обычно составляет 60 см. Если используется деревянный каркас, то брусья крепятся к потолку с помощью саморезов. Для повышения прочности конструкции рекомендуется использовать дополнительные поперечные элементы.
Когда каркас установлен, можно приступать к креплению гипсокартонных листов. Листы крепятся к каркасу с помощью саморезов, которые должны быть утоплены в материал на 1-2 мм, чтобы избежать повреждения поверхности при дальнейшей отделке. Рекомендуется начинать монтаж с угла помещения, постепенно продвигаясь к центру. При этом важно оставлять зазоры между листами и стенами для компенсации возможных деформаций.
После того как все листы установлены, необходимо обработать швы и стыки. Для этого используются специальные армирующие ленты и шпаклевка. Сначала швы заполняются шпаклевкой, затем наклеивается лента, и снова наносится слой шпаклевки. После высыхания шпаклевки поверхность шлифуется для достижения идеальной гладкости.
Финишный этап – это покраска или оклейка потолка обоями. Перед этим рекомендуется загрунтовать поверхность, чтобы улучшить сцепление с отделочными материалами. Важно помнить, что гипсокартон – это материал, чувствительный к влаге, поэтому в помещениях с высокой влажностью (например, в ванной) следует использовать влагостойкие листы и специальные краски.
Таким образом, монтаж гипсокартона на потолок – это процесс, требующий тщательной подготовки и соблюдения технологии. Правильный подход к каждому этапу позволит создать качественную и долговечную конструкцию, которая станет украшением любого интерьера.
Вопрос-ответ
Почему делают 2 слоя гипсокартона?
Установка гипсокартона в два слоя способствует снижению теплопотерь за счет уменьшения продуваемости стен. Каждый дополнительный слой создает дополнительный барьер для холодного воздуха, что особенно важно в зимний период. Это позволяет эффективно удерживать тепло внутри помещений, создавая уютную атмосферу.
Как нельзя ставить гипсокартон?
Гипсокартон нельзя устанавливать на влажные или сырые поверхности, так как это может привести к его деформации и образованию плесени. Также не следует монтировать его без предварительной проверки и выравнивания стен, а также без использования подходящих крепежей и профилей, что может снизить прочность конструкции. Нельзя забывать о соблюдении температурного режима и вентиляции в помещении, так как это также влияет на долговечность материала.
Что ложат между гипсокартоном и стеной?
Пенополиуретан – современный материал для заполнения пространства между стеной и гипсокартоном, который наносится методом напыления. Он образует бесшовное покрытие, полностью заполняющее все пустоты и неровности, что обеспечивает отличную теплоизоляцию.
Советы
СОВЕТ №1
Перед началом монтажа гипсокартона обязательно проведите тщательные замеры и подготовьте чертежи. Это поможет избежать ошибок при раскрое материала и обеспечит более точное соответствие размеров стен и потолков.
СОВЕТ №2
Используйте качественные крепежные элементы и инструменты. Это не только упростит процесс монтажа, но и обеспечит долговечность конструкции. Обратите внимание на тип саморезов и дюбелей, которые подходят именно для гипсокартона.
СОВЕТ №3
При монтаже гипсокартона старайтесь оставлять зазоры между листами и стенами, чтобы избежать трещин и деформаций. Рекомендуется оставлять зазор в 5-10 мм, что позволит материалу “дышать” и компенсировать возможные изменения температуры и влажности.
СОВЕТ №4
Не забывайте о звукоизоляции и теплоизоляции. Используйте специальные материалы, такие как минеральная вата или звукоизоляционные мембраны, чтобы улучшить акустические и тепловые характеристики помещения.







