Основные характеристики планировки
Дома серии П-55 относится к категории “шумозащитных домов”. Эти дома этой серии строят вдоль железных дорог и шумных транспортных магистралей. Отсюда и своеобразие планировочного решения и наличие многокомнатных квартир.
Суть шумозащиты заключается в том, чтобы на шумную магистраль выходили нежилые помещения и максимум одна жилая комната многокомнатной квартиры.
Главной задачей было сделать так, чтобы городской шум не попадал в комнаты квартир и не воздействовал на сложившийся там микроклимат. На базе серии П-55 основана следующая более современная серия П-55М.
Дома серии п-55 — которые мы относим к поздним брежневским домам, хотя и возводились они уже в 80 — 90-е года, часть домов была возведена даже в 2000-е.
К достоинствам серии П-55 можно, безусловно, отнести хорошую шумоизоляцию, а также большие размеры ванной и туалетной комнаты.
Недостатки данной серии заключаются в ограниченной возможности перепланировки, затрудненной механической обработки керамзитобетонных панелей, а также узких комнат-пеналов. Дома серии П-55 сносу не подлежат, капремонта не требуют.
Характеристики серии П-55:
- Этажность: 9, 12-14 этажей
- Материалы стен и перекрытий: шумозащитные панели
- Толщина стен: наружных — 34 см (керамзитобетонные), внутренних — 14 либо 18 см (железобетонные), перегородок — 8 см, перекрытий — 14 см.
- Годы строительства — 1978-2002 г.
- Города распространения — Москва, Одинцово, Реутов, Электроугли
- Лифты/мусоропровод: 2 пассажирских/клапан на каждом этаже
- Планировка квартир: 2 варианта размещения квартир на этаже, количество комнат в квартирах — от одной до четырех.
- Серия: П-55
- Тип дома: панельный
- Производитель: МПСМ (входит в корпорацию Главстрой)
- Годы строительства: 1978 – 2002 гг.
- Количество этажей: 12-14
- Количество комнат в квартирах: 1, 2, 3, 4
- Высота жилых помещений: 2,64 м
- Количество квартир на этаже: 4
- Количество секций (подъездов): от 2
- Лифты: два пассажирских грузоподъемностью 400 кг
- Лестницы: обычные, без общего противопожарного балкона
- Вентиляция: естественная вытяжная через вентблоки в санузле и на кухне
- Мусороудаление: с загрузочными клапанами на каждом этаже
- Технические помещения: техподполье и чердак для размещения инженерных коммуникаций
- Лоджии: кроме 1-го этажа остекленные лоджии и эркеры во всех квартирах
- Ванны: стандартные, длиной 170 см
- Санузлы: раздельные
- Наружные стены: керамзитобетонные панели толщиной 340 мм
- Внутренние стены: железобетонные толщиной 140 и 180 мм
- Перегородки: толщиной 80 мм
- Перекрытия: железобетонные толщиной 140 мм
В Зеленограде корпус 1432 сочетает серии П-55 и П-47, корпус 1640 сочетает серии П-55 и П-46М 2. Корпуса 1471 и 1462 являются модификацией серии П-55 и имеют следующие отличия: – большие комнаты квартир имеют эркер, что увеличивает их площадь; – лоджии и эркеры имеют квартиры, начиная с 3-4-го этажа.
Описание
Проект типовых панельных многоэтажек П-55 разработан в семидесятых годах, основной задачей проектировщиков было создание комфортного жилья, характеристики которого соответствовали бы условиям современного мегаполиса. Конструкция жилого дома предполагает повышенную шумозащиту жилых помещений, поэтому такие дома можно было строить даже вблизи оживленных транспортных артерий.
Разработкой проекта занимался Московский НИИ типологии и экспериментального проектирования, а непосредственным возведением – застройщик МПСМ, который позже вошел в структуру «Главстрой».
Первый дом по проекту П-55 был построен в 1978 году, технологические решения оказались весьма эффективными, и строительство по проекту П-55 велось вплоть до 2002 года. Однако, несмотря на это, дома этой серии относят к категории «брежневок», что обусловлено конструктивными характеристиками здания.
Дома возводились во многих районах массовой застройки в Москве и в целом ряде городов Московской области.
Внешний вид и конструктивные особенности
Внешне дома серии П-55 представляют собой ряд блок-секций (от двух подъездов) на 9, 12 или 14 этажей. Большинство жилых помещений находятся на внутренней (дворовой) стороне, что, наряду с конструкционными особенностями стен, обеспечивает проживающим акустический комфорт.
Железобетонные плиты облицовкой не покрывались, наносилась краска следующих цветов: белый, бежевый, оранжевый, розовый, коричневый, желтый, голубой, морская волна.
В каждом подъезде есть сразу два пассажирских лифта, на каждой лестничной площадке имеется люк мусоропровода. Над верхним жилым этажом обустроено чердачное помещение, где размещены инженерные коммуникации, завершает конструкцию эксплуатируемая плоская кровля с рулонным покрытием и внутренним водостоком.
Внешний вид и особенности постройки
На заметку!
По внешнему виду жилые дома серии П-55 состоят из секционных частей. Количество этажей может быть различным, от 9 до 14. Большая часть квартир располагаются в дворовой стороне, что, вместе в техническими особенностями стен, позволяет жителям находиться в зоне акустической защиты.
Плиты из железобетона не покрывали облицовкой, но на них наносилась краска одного из следующих цветов: желтый, голубой, коричневый, оранжевый, розовый, белый или бежевый.
В каждом из подъездов имеется два лифта, оба из которых являются пассажирскими. На всех лестничных площадках расположены мусоропроводные дверцы. Над последним этажом находится чердак. Крыша покрыта плоской кровлей, снабженной системой водостока и защищенной рулонным типом покрытия.
Особенности квартирных планировок
Проект предусматривает квартиры с изолированными комнатами, в каждой квартире имеется остекленный балкон-лоджия (кроме квартир первых этажей), и раздельный санузел, на кухнях установлены электроплиты. Естественную вентиляцию помещений обеспечивают вытяжные отверстия, расположенные на кухне и в санузлах.
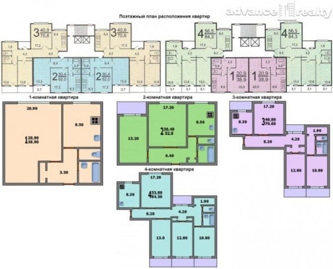
В домах серии П-55 присутствуют квартиры однокомнатные (36-39м2), двухкомнатные (50-52м2), трехкомнатные (70-71) и четырехкомнатные (84-85м2).
Наружные стены выполнены из керамзитобетонных плит и имеют толщину в 34 см., толщина межкомнатных и межквартирных перегородок составляет от 14 до 18 см, а толщина гипсобетонных перегородок санузлов составляет 8 см.
Планировка квартир
Планом П-55 предусмотрены жилые квартиры с одной или несколькими изолированными друг от друга комнатами. При этом в каждой из квартир располагается санузел и установлены электроплиты. Все квартиры, за исключением расположенных на первом этаже, имеют балкон-лоджию, обустроенную и застекленную. Вентилирование помещений происходит с помощью отверстий для вытяжки, находящихся в санузлах и на кухне.
Главное!
В домах конструкции П-55 присутствуют четыре типа квартир, отличающихся количеством комнат и общей площадью. Однокомнатные квартиры имеют площадь от 36 до 39м2, площадь двухкомнатных составляет 50-52м2, трехкомнатных – 70-71м2 и четырехкомнатных – 84-85м2.
Внешние стены изготовлены из прочных, надежных керамзитовых плит, толщина которых составляет порядка 34 см. Диаметр перегородок между квартирами и отдельными комнатами, в разных местах, имеет диаметр 14-18 см. Стенки между санузлами изготовлены из гипсобетона, их толщина 8 см.
Технические характеристики
- Альтернативное наименование: П55
- Регионы строительства:
- В Москве: Очаково, Южное Бутово, Митино, Ховрино, Перерва, Новокосино, Новогиреево, Вешняки, Кунцево, Тушино, Строгино, Отрадное, Замоскворечье, Раменки, Котловка, Академический, Хорошёво-Мнёвники, Текстильщики, Царицыно, Зеленоград.
- В Московской области: Мытищи, Одинцово, Реутов, Королев, Электроугли, Электросталь, Железнодорожный, поселок Ерино.
- Технология строительства: панельный
- По периоду строительства: Брежневки
- Годы строительства: с 1978 по 2002 гг
- Перспектива сноса: Сносу не подлежат, капремонта не требуют
- Количество секций/подъездов: от 2
- Количество этажей: 9, 12, 14
- Высота потолков: 2.64
- Балконы/лоджии: Кроме первого этажа, остекленные лоджии и эркеры во всех квартирах
- Санузлы: раздельные, ванны: стандартные, длиной 170 см
- Лестницы: обычные, без общего противопожарного балкона
- Мусоропровод: с загрузочным клапаном на каждом этаже
- Лифты: два пассажирских, 400 кг
- Количество квартир на этаже: 4
- Площади квартир:
Общая/жилая/кухня
1-комнатная квартира: 36-39/20-21/8-9 2-комнатная квартира: 50-52/30-31/8-9 3-комнатная квартира: 70-71/40-41/8-9 4-комнатная квартира: 84-85/55-57/8-9
- Вентиляция: естественная вытяжная в санузле и в кухне
- Стены и облицовка:
Наружные стены: керамзитобетонные с повышенной шумозащитой. Толщина стен 34 см Внутренние несущие стены: железобетонные панели, толщиной 14 и 18 см Перегородки комнат и санузлов: гипсобетонные, толщиной 8 см Перекрытия: беспустотные железобетонные плиты толщиной 14 см Несущие стены: внутренние межквартирные и межкомнатные продольные и поперечные Облицовки нет. Цвета: белый, бежевый, оранжевый, розовый, коричневый, желтый, голубой, морская волна.
- Тип кровли: плоская; покрытие – рулонное, техподполье и чердак для размещения инженерных коммуникаций
- Производитель: МПСМ (входит в корпорацию Главстрой)
- Проектировщики: МНИИТЭП (Московский НИИ типологии и экспериментального проектирования)
- Достоинства: хорошая шумоизоляция, большине размеры ванной комнаты и туалета
- Недостатки: относительно узкие комнаты-пеналы, ограниченная возможность перепланировки, затрудненная механическая обработка керамзитобетонных панелей
Подробные характеристики
| Количество секций (подъездов) | 2 и более |
| Количество этажей | 9, 12, 14. Первый этаж бывает как жилой, так и нежилой |
| Высота потолков | 2.64 |
| Лифты | два пассажирских 400 кг |
| Балконы | Кроме первого этажа остекленные лоджии и эркеры во всех квартирах |
| Количество квартир на этаже | 4 |
| Годы строительства | с 1978 по 2002 |
| Перспектива сноса | Сносу не подлежат, капремонта не требуют. |
| Санузлы | Санузлы: раздельные, ванны: стандартные, длиной 170 см. |
| Лестницы | обычные, без общего противопожарного балкона |
| Мусоропровод | с загрузочным клапаном на каждом этаже |
| Вентиляция | естественная вытяжная в сантехкабине (санузле) и в кухне |
| Стены и облицовка | Наружные стены: Наружные стены керамзитобетонные с повышенной шумозащитой. Толщина стен 34 см. Внутренние несущие стены — железобетонные панели, толщиной 14 и 18 см. Перегородки комнат и санузлов — гипсобетонные толщиной 8 см. Перекрытия — беспустотные железобетонные плиты толщиной 14 см. Несущие стены – внутренние межквартирные и межкомнатные продольные и поперечные Облицовки нет. Цвета: белый, бежевый, оранжевый, розовый, коричневый, желтый, голубой, морская волна. |
| Тип кровли | Тип кровли: плоская; покрытие — рулонное. техподполье и чердак для размещения инженерных коммуникаций |
| Достоинства | хорошая шумоизоляция, большие размеры ванной комнаты и туалета |
| Недостатки | относительно узкие комнаты-пеналы, ограниченная возможность перепланировки, затрудненная механическая обработка керамзитобетонных панелей |
| Производитель | МПСМ (входит в корпорацию Главстрой) |
| Проектировщики | МНИИТЭП (Московский НИИ типологии и экспериментального проектирования) |
Планировки 1-комнатной квартиры
Однокомнатные квартиры серии П-55 имеют размеры 36-39 кв.м, жилых из которых 20-12 кв. м. Параллельно прихожей формируется выступ для самой комнаты. Это позволяет сэкономить полезную площадь, разместить в нем гардеробную либо спальное место, а остаток комнаты выделить в зону отдыха – гостиную.
Планировка жилья серии П-55 в любой вариации комнат имеет стандартные параметры кухни – 8-9 кв. м. Это средний показатель, позволяющий комфортно пользоваться кухней как одному человеку, так и целой семье.
Пространство имеет раздельный санузел. В ванной легко поместится раковина, стиральная машинка, ящик для белья, помимо самой ванны или душевой кабинки. Окна в кухню, в комнату довольно большие для полноценного естественного освещения днем.
Описание дома
Дом серии п-55 отличается повышенной шумоизоляцией, обеспеченной использованием специальных навесных панелей для стен и перекрытий, а также остеклением балконов, заменой обычного стекла стеклопакетами в оконных рамах. Дом имеет ряд преимуществ: раздельный санузел с увеличенной площадью ванной комнаты, отсутствие общих пожарных выходов, что часто используются ворами.
Новая планировка панельных домов позволила возводить жилье 12 и 14, реже 9-этажные на 2 и более подъезда. Также применять одну из двух планировок вне зависимости от того, какое количество секций предусмотрено застройщиком. Первая состоит в размещении 1 и 4-комнатных квартир по обе стороны от лифтовой шахты. Вторая комбинирует 2, 3-комнатные на этаже, а также с обеих сторон от лифта. Планировка предусматривает на каждом этаже по 4 квартиры.
К основным характеристикам данной серии панельных застроек относятся:
- наружные стены керамзитобетонные панели толщиной 340 мм, трехслойные и с повышенной шумоизоляцией;
- вентиляция – вытяжка в санузле, на кухне;
- перекрытия железобетонные толщиной 140 мм безпустотные;
- перегородки из гипсобетонных прокатных панелей в 80 мм;
- мусоропровод с загрузочными клапанами на каждом этаже;
- высота жилых помещений 2.64 м;
- лифт пассажирский в количестве 1-2 единиц;
- здание имеет плоскую крышу с рулонным покрытием.
Для размещения инженерных сетей используется подвал, крыша.
Этот дом считается достаточно новым, не подлежит не только сносу, но и капитальному ремонту. А благодаря конструкции наружных панелей, он не требует дополнительного утепления.
Планировки 1-комнатной квартиры
Однокомнатные квартиры серии П-55 имеют размеры 36-39 кв.м, жилых из которых 20-12 кв. м. Параллельно прихожей формируется выступ для самой комнаты. Это позволяет сэкономить полезную площадь, разместить в нем гардеробную либо спальное место, а остаток комнаты выделить в зону отдыха – гостиную. Планировка жилья серии П-55 в любой вариации комнат имеет стандартные параметры кухни – 8-9 кв. м. Это средний показатель, позволяющий комфортно пользоваться кухней как одному человеку, так и целой семье.
Вам будет интересно: Дома серии 1-511: варианты планировок квартир
Пространство имеет раздельный санузел. В ванной легко поместится раковина, стиральная машинка, ящик для белья, помимо самой ванны или душевой кабинки. Окна в кухню, в комнату довольно большие для полноценного естественного освещения днем.
Планировки 2-комнатной квартиры
Дом на два жилых помещения, где применяется серия П-55, возведен в 50-52 кв. м дает 30-31 кв. м полезной площади, на которой размещается кухня, раздельный санузел, стандартная квадратная спальня, так называемая спальня-пенал. Именно последнюю признали наименее комфортной в эксплуатации, однако, при умелом дизайне она станет вполне удобной.
Постройка, где применялась планировка серии П-55, начиная с 2-комнатных квартир, имеет застекленные лоджии, выход к которым осуществляется именно через длинные комнаты. Часто квадратные помещения используются под спальню родителей или гостевые, а «пеналы» – под детские или спальни.
Планировки 3-комнатной квартиры
Трехкомнатная квартира П-55, общей площадью 70-71 кв. м, располагает полезными 40-41 кв. м.
Санузел раздельный, кухня, две жилые комнаты с удлиненными формами, одна квадратная. К «пенальным» присоединены балконы.
Ванная примыкает к одной из комнат, но в санузле продуманно шумоизоляцию для обеспечения удобства проживания владельцев. Постройка, где использовалась планировка данной серии, включает длинный холл. Площадь кухни ничем не отличается от других типовых конструкций данной конфигурации. Однако примыкает она не к санузлу, а к жилому помещению.
Планировки 4-комнатной квартиры
Схема типовых секций с размещением квартир из 4 жилых комнат практически не отличается от трехкомнатных с единственным дополнением. В наличии еще одного помещения «пенальной» формы. Дополнительно имеется третий балкон. Несущие стены железобетонные панели обеспечивают отличную шумо- и теплоизоляцию.
Дом П-55 серия такой вариации имеет 84-85 кв.м общей и 55-57 кв. м жилой площади. Формы помещений стандартные и типовая серия дома П-55 такой вариации признана комфортной для проживания семьи из 5-6 человек.
Планировки 2-комнатной квартиры
Дом на два жилых помещения, где применяется серия П-55, возведен в 50-52 кв. м дает 30-31 кв. м полезной площади, на которой размещается кухня, раздельный санузел, стандартная квадратная спальня, так называемая спальня-пенал.
Именно последнюю признали наименее комфортной в эксплуатации, однако, при умелом дизайне она станет вполне удобной.
Постройка, где применялась планировка серии П-55, начиная с 2-комнатных квартир, имеет застекленные лоджии, выход к которым осуществляется именно через длинные комнаты. Часто квадратные помещения используются под спальню родителей или гостевые, а «пеналы» – под детские или спальни.
Варианты перепланировок
Остекленные лоджии, планировка больших ванных комнат и практичное использование жилых квадратных метров делают дом, где использовалась серия П-55, довольно удобным. Но при желании устранить комнаты-пеналы, можно согласовать план на снос межкомнатной перегородки. Для однокомнатных важно учесть, что планировка кухни-студии не допустима по техническим нормам. Согласование перепланировки необходимо для обеспечения безопасности всего дома, его устойчивости и отсутствия проблем с коммуникационными системами. Сделать свое жизненное пространство более комфортным помогут профессиональные архитекторы, дизайнеры, обладающие соответствующими знаниями нормативной базы.
Вам будет интересно: Типовая серия дома 1-464: характеристики постройки и планировка квартир
Однокомнатная
Двухкомнатная
Трехкомнатная
Планировки 3-комнатной квартиры
- Трехкомнатная квартира П-55, общей площадью 70-71 кв. м, располагает полезными 40-41 кв. м.
- Санузел раздельный, кухня, две жилые комнаты с удлиненными формами, одна квадратная. К «пенальным» присоединены балконы.
- Ванная примыкает к одной из комнат, но в санузле продуманно шумоизоляцию для обеспечения удобства проживания владельцев. Постройка, где использовалась планировка данной серии, включает длинный холл. Площадь кухни ничем не отличается от других типовых конструкций данной конфигурации. Однако примыкает она не к санузлу, а к жилому помещению.
Планировки 4-комнатной квартиры
Схема типовых секций с размещением квартир из 4 жилых комнат практически не отличается от трехкомнатных с единственным дополнением. В наличии еще одного помещения «пенальной» формы. Дополнительно имеется третий балкон. Несущие стены железобетонные панели обеспечивают отличную шумо- и теплоизоляцию.
Дом П-55 серия такой вариации имеет 84-85 кв.м общей и 55-57 кв. м жилой площади. Формы помещений стандартные и типовая серия дома П-55 такой вариации признана комфортной для проживания семьи из 5-6 человек.
Какими способами можно согласовать перепланировку квартиры или нежилого помещения в доме серии П-55
Условно, согласование перепланировок можно разделить на 4 основных вида:
- Перепланировки, требующие согласования по проекту. Полный перечень работ, относящихся к согласованию по проекту, приведен в п. 2 и3 Приложения 2 Постановления Правительства Москвы № 508. Это наиболее трудоемкий и часто встречающийся вид согласования.
- Согласование ранее выполненной перепланировки. Данный вид согласования распространяется и на квартиры, и на нежилые помещения в жилом доме (только в том случае, когда не затронут фасад дома).
- Перепланировка/переустройство, которую можно согласовать по типовому проекту. К данному виду согласования относятся типовые серии домов (панельные, блочные), разработанные автором проекта АО «МНИИТЭП». В данном случае, самая большая проблема людей, планирующих перепланировку, состоит в том, что нужно строго руководствоваться данным проектом и при малейшем отступлении от него потребуется согласовывать проект по проекту (п.1 настоящего перечня).
- Перепланировка, не требующая согласования и внесения изменений в поэтажные планы БТИ. К таким работам относится: поклейка обоев, замена напольного покрытия на аналогичное, замена окон, замена сантехнических прибор (без перестановки), перестановка посудомоечной или стиральной машины, замена межкомнатных дверей.
Какими способами можно согласовать перепланировку квартиры или нежилого помещения в доме серии П-55
Условно, согласование перепланировок можно разделить на 4 основных вида:
- Перепланировки, требующие согласования по проекту. Полный перечень работ, относящихся к согласованию по проекту, приведен в п. 2 и3 Приложения 2 Постановления Правительства Москвы № 508. Это наиболее трудоемкий и часто встречающийся вид согласования. Подробнее о данном виде согласования Перейти
- Согласование ранее выполненной перепланировки. Данный вид согласования распространяется и на квартиры, и на нежилые помещения в жилом доме (только в том случае, когда не затронут фасад дома). Подробнее о согласовании ранее выполненной перепланировки читать здесь: Перейти
- Перепланировка/переустройство, которую можно согласовать по типовому проекту. К данному виду согласования относятся типовые серии домов (панельные, блочные), разработанные автором проекта АО «МНИИТЭП». В данном случае, самая большая проблема людей, планирующих перепланировку, состоит в том, что нужно строго руководствоваться данным проектом и при малейшем отступлении от него потребуется согласовывать проект по проекту (п.1 настоящего перечня).
- Перепланировка, не требующая согласования и внесения изменений в поэтажные планы БТИ. К таким работам относится: поклейка обоев, замена напольного покрытия на аналогичное, замена окон, замена сантехнических прибор (без перестановки), перестановка посудомоечной или стиральной машины, замена межкомнатных дверей.
Варианты переустройства квартиры в жилом доме серии П-55
К существенным недостаткам модификации П-55 относят ограниченные возможности изменения планировки жилья: выбор вариантов переустройства является небольшим из-за несущих межкомнатных стен, которые не подлежат демонтажу.
Наиболее распространенным способом переустройства квартиры считается демонтаж ненесущей перегородки между коридором и жилой комнатой для обустройства просторной гостиной, где могут проводить время все члены семьи. Такой вариант поможет визуально увеличить пространство, а также повысить функциональность жилья.
Несмотря на то, что такая стена не является несущей и не влияет на конструкцию постройки, ее демонтаж также необходимо узаконивать в Жилищной инспекции.
Чтобы быстро получить разрешение на проведение работ, нужно учитывать несколько нюансов:
- Необходимо заказать техническое заключение у компании с допуском СРО, специалисты которой подтвердят возможность таких изменений планировки.
- Проект переустройства должен быть составлен с учетом всех требований закона и отображать демонтаж стен-перегородок.
- Перед сносом перегородки нужно убедиться, что внутри нее не находятся коммуникации, а при обнаружении проводов необходимо их обесточить.
- Если вы решили перенести ненесущую стену из гипсокартона на новое место, это изменение также необходимо отразить в проекте перепланировки.
- При соблюдении всех строительных норм инспекторы надзорного органа быстро выдадут разрешение на проведение ремонтно-строительных работ. Собственники недвижимости должны помнить, что за несогласованное переустройство можно получить административную или даже уголовную ответственность, поэтому к разработке проекта нужно подходить максимально ответственно.
Процедура узаконивания перепланировки в жилом доме серии П-55
Согласование переустройства, которое считается обязательным пунктом для всех владельцев квартир, желающих изменить планировку своего жилья, обычно длится один-два месяца и состоит из нескольких последовательных действий:
- Подписание договора с компанией, имеющей допуск СРО, для разработки технического заключения, проекта изменений.
- Предоставление документов для рассмотрения сотрудникам Жилищной инспекции.
- Тщательный контроль за каждым этапом проведения ремонтно-строительных работ.
- Подписание комиссией инспекторов акта о завершенной перепланировке, который подтверждает соответствие проведенных работ узаконенному плану.
Если владельцы жилого помещения не имеют соответствующего опыта в данной сфере, то регистрация переустройства может продлиться несколько месяцев. Оптимальным выбором станет обращение к услугам организации, специализирующейся на оформлении изменений планировки.
- Отличительные особенности: дома типовой серии П-55М, созданной на базе шумозащитной серии П-55 (строилась с 1984 по 1997 г.), по сравнению с ней имеют более широкий корпус, и, соответственно, увеличенные площади комнат, кухонь, холлов, общие площади квартир. Также в П-55М появились вторые санузлы в 3- и 4-комнатных квартирах
- Иные достоинства: П-55М также относится к сериям с повышенной шумозащитой (но не из-за наличия шумопоглощающих элементов, а благодаря планировкам): окна всех спален, согласно проекту, должны выходить во двор, а на улицу – только кухни, гостиные и лестничные площадки. Лестнично-лифтовой узел спроектирован с учетом беспрепятственного доступа инвалидов с улицы на отметку пола 1-го этажа
- Недостатки: узкие комнаты-«пеналы», ограниченная возможность перепланировки квартир (проем в несущей стене возможен только на верхних этажах и с обязательным устройством рамы усиления)
Цены на согласование перепланировки в доме серии П-55
| Перепланировка в доме серии П-55 | Цена на согласование | Запрос на индивидуальный расчет | ||
| Проект и техническое заключение | Получение Разрешения | Получения Акта, БТИ и выписки из ЕГРП | ||
| Перепланировка квартиры без затрагивания несущих конструкций | от 20 000 руб. | от 30 000 руб. | от 60 000 руб. | Получить коммерческое предложение |
| Перепланировка нежилого помещения без затрагивания несущих конструкций | от 40 000 руб. | от 100 000 руб. | от 100 000 руб. | Получить коммерческое предложение |
| Перепланировка квартиры с устройством проема в несущей стене | от 100 000 руб. | от 60 000 руб. | от 60 000 руб. | Получить коммерческое предложение |
| Перепланировка нежилого помещения с устройством проема в несущей стене | от 120 000 руб. | от 100 000 руб. | от 100 000 руб. | Получить коммерческое предложение |
Расположение в Москве и Московской области
- В Москве дома построены в районах: Очаково, Южное Бутово, Митино, Ховрино, Перерва, Новокосино, Новогиреево, Вешняки, Кунцево, Тушино, Строгино, Отрадное, Замоскворечье, Раменки, Котловка, Академический, Хорошёво-Мнёвники, Текстильщики, Царицыно, Зеленоград и других.
- В Московской области строились в городах: Мытищи, Одинцово, Реутов, Королев, Электроугли, Электросталь, Железнодорожный, поселок Ерино.
Согласование устройства отдельного входа в доме серии П-55М
Согласование устройства отдельного входа требуется при переводе жилого помещения в нежилое, а также при устройстве дополнительного эвакуационного выхода. Данный процесс считается одним из самых сложных в согласовании, так как в этом случае требуется получение согласия всех собственников жилого многоквартирного дома на производство таких работ.
Также, для того, чтобы определить возможность устройства отдельного входа, выполняется обследование, на основании которого специалисты дают ответ о технической возможности/невозможности устройства проема в фасадной стене.
На основании положительного технического заключения выполняются проектные работы по устройству и усилению вновь устраиваемого проема.























