Обозначения лестничных клеток
Такими схемами пользуются в многоэтажных домах. Там лестницы построены строго по ГОСТу, и на каждом этажа должен иметься план конструкции с ее обозначениями. Обычно изображают лестничные сечения, марши (нижний, верхний, средний). Специальными стрелками указывается направление марша вверх. Линия начинается с небольшого кружка, а заканчивается острой стрелой. Лестничные клетки также представляются на схеме отдельными маршами и проемами.
Лестничные параметры
Обозначение конструкций на чертежах
При разработке проекта дома с лестницей, конструкция марша условно обозначается, как на рисунке. При этом кружочком отмечается низ изделия, а стрелкой – верх.
Обозначение на чертежах лестниц
Помимо формы, на чертеже условно изображается и материал изготовления.
Например:
- Дерево в поперечном разрезе штрихуется круговыми и радиальными линиями, которые имитируют годовые кольца древесины и радиальные трещины на ней. В продольном разрезе рисуются продольные линии, имитирующие текстуру. Если в линию разреза материал лестницы не попадает, он не штрихуется;
- Железобетонные лестницы на чертежах изображаются в сечении кружочками неправильной формы между диагональной штриховкой;
- Металлические конструктивные детали в разрезах штрихуются диагональными линиями под углом 45°. Если лестницы и их чертежи имеют очень мелкий масштаб, а толщина элемента менее 2 мм, они имеют сплошную заливку.
Составление чертежа
После расчётов и проведения замеров, можно приступать к составлению чертежа. Стоит учитывать, что схема должна отражать 3 проекции: сверху, сбоку и спереди. Такой подход позволит создать своими руками максимально качественный и информативный чертёж. В первую очередь следует заняться видом сверху. В верхней проекции рекомендуется начертить план помещения, на котором указать место локализации и примерный вид лестницы (если модель будет с площадкой – обязательно её отобразить). Не лишним будет указать начало и конец конструкции либо направление движения с первого этажа на второй.
Следующая проекция – вид спереди. Здесь достаточно перенести сделанные замеры и расчёты на бумагу. Схему самого помещения чертить не обязательно.
Завершающий этап – вид сбоку. Так как он совмещает верхнюю и фронтальную проекцию, к указанию размеров и пропорций нужно подходить с особым вниманием. Также здесь следует отобразить тип крепления ступенек. Например, если лестница на косоурах – ступени должны располагаться сверху несущей балки, если на тетивах – внутри.
Общие принципы разработки чертежей
Маршевая лестница, чертеж с размерами
Чтобы правильно осуществить изготовление лестниц своими руками, чертежи должны быть максимально подробными и качественными.
Обычно цена проекта составляет до 5% от стоимости сооружения конструкции. Чтобы самостоятельно составить рабочий чертеж лестницы, нужно не только желание, но и определенные знания.
При этом расчет и чертеж лестницы на второй этаж выполняется после выбора ее параметров. К ним предъявляются такие требования:
- Угол наклона марша. Комфортный диапазон уклона составляет 25° — 45°;
Совет: Для экономии материалов и места, в редко посещаемые помещения — такие как чердак или подвал, стоит устраивать лестницы для подъема с углом наклона до 75°.
- Количество ступенек в одном марше должно быть не менее трех, и не более 18. Если их будет больше, увеличивается длина конструкции, что чревато получением травмы при падении;
- В пределах одного прямого марша все ступеньки должны иметь одинаковые размеры. Это связано дополнительно с пожарной безопасностью. В задымленном помещении спускаться приходится чаще по памяти, ноги при этом ставятся на ощупь;
- Размеры площадки, длина и ширина, расположенной на одной прямой с маршем, выбираются не менее размера ширины лестницы;
- Ведущую на лестницу дверь лучше открывать во внутрь, в случае невозможности сделать площадку более широкой, чем дверное полотно.
Перед тем, как построить лестницу на второй этаж, выбираются размеры с учетом рекомендаций СНиПа 31-02-2001:
- Ширина межэтажной лестницы должна быть не менее 900 мм;
- Ограждение в частном доме выбирается высотой 900 мм, а при высоте конструкции более 6 метров – от одного метра;
- Сооружая межэтажные лестницы своими руками, следует иметь в виду, что чертежи обязательно должны иметь размеры элементов ступенек:
- Ширина проступей выбирается в пределах – от 260 мм до 350 мм, чтобы на них помещалась ступня взрослого человека. Это снимет напряжение икроножных мышц при подъеме по маршу.
- Высота ступенек составляет – от 125 мм до 200 мм. Оптимальный вариант лестницы на второй этаж — чертежи ступенек с размерами: ширина – 300 мм, высота – 150 мм.
- Суммарный размер проступи и двух высот ступенек, должен составлять длину среднего шага, примерно 650 мм.
- Для винтовых, спиральных лестниц, и для конструкций с забежными ступеньками, выбирается оптимальный радиус поворота, равный сумме ширины лестницы и удвоенной ширины проступи.
- Размер проступи измеряется по средней линии ступеньки. Например, если ширина лестницы 1000 мм, а ширина проступи по средней линии — 200 мм, радиус поворота должен быть не менее 1000 + (200 х 2) = 1400 мм;
- Просвет или расстояние от ступеньки до потолка, выполняется не меньше 2 метров. В этом случае высокий человек не станет пригибаться.
Чертежи лестниц: обозначения, термины и размеры
Как обозначается лестница на чертеже? Как начертить лестницу в автокаде, каким должен быть ее уклон и размер ступени? Как правильно называются элементы конструкции лестничного марша? Ответы на эти и некоторые другие вопросы мы постараемся найти в статье.
Человек, не обделенный художественным талантом, может нарисовать лестницу своей мечты. Но строитель его не поймет.
План здания
Как правило, чертеж лестницы является частью плана здания или этажа. Со знакомства с понятием плана мы и начнем.
Стоит уточнить: разумеется, при изготовлении сколь-нибудь сложных конструкций составляется и детальный эскиз с указанием тех размеров, которые на плане здания обычно отсутствуют. Однако лестница в любом случае указывается на общем плане.
Итак, план — это проекция горизонтального среза этажа или дома целиком на плоскость. Какая информация в нем присутствует?
- Расположение всех помещений этажа с указанием их размеров.
- Расположение лестничных клеток и маршей.
- Расположение оконных и дверных проемов — тоже, разумеется, с размерами.
- Конструкция здания (включая расположение опор и пролетов перекрытий).
- Толщина несущих стен и колонн.
Составление планов подчиняется определенным правилам:
- Главный фасад находится внизу плана.
План этажа коттеджа. Фасад находится внизу.
- Если на одном листе расположены планы нескольких этажей, они располагаются по возрастанию номера этажа слева направо или сверху вниз.
- На плане указывается направление открывания дверей.
- Чертеж лестничного марша дополняется стрелкой, указывающей уклон снизу вверх: начало стрелки всегда внизу марша.
Терминология
Как правильно называются готовые лестницы различных типов и их элементы?
Типы лестниц
- Винтовая лестница закручена вокруг столба. Ее характерная особенность — ступени треугольной или трапециевидной формы. Обычно используется в условиях дефицита места; довольно неудобна для транспортировки габаритных предметов.
- Маршевая — ее полная противоположность: прямоугольные ступни и прямые линии.
- Спиральная лестница отличается от винтовой тем, что описывает окружность на удалении от геометрического центра.
- У консольной отсутствует несущий каркас — ступени одной стороной вмурованы в стену.
- Модульная собирается из одинаковых конструктивных элементов. Соединения остаются разборными.
Готовые лестницы – особенности современных конструкций
- Больцевая вместо несущего каркаса использует в качестве опоры стальные элементы, связывающие ступени между собой — больцы.
- Чердачные и подвальные лестницы отличаются от прочих довольно условно: для них характерен больший уклон. Причина — высокие требования к компактности и низкие — к удобству. Однако они могут и не отличаться от межэтажных: не везде требуется экономия площади.
- Пожарные могут быть как маршевыми, так и вертикальными. Вертикальные лестницы при высоте больше шести метров комплектуются ограждениями.
Помимо внешнего вида и назначения, лестницы могут различаться материалом. Популярные материалы для их изготовления своими руками — железобетон, сталь и древесина; наряду с ними могут применяться более экзотические: стекло, искусственный или натуральный камень, керамика и некоторые пластики.
Обратите внимание: исключение — стационарные пожарные лестницы. Они изготавливаются только из стали.
Чердачные лестницы – какими они бывают
Элементы
- Уже упомянутый нами марш — всего лишь прямой участок лестницы.
- Проступь — горизонтальная поверхность ступени.
- Подступенок — вертикальный конструктивный элемент, подпирающий проступь.
Однако: винтовые, консольные и некоторые маршевые лестницы часто обходятся без подступенков.
- Косоур — опорная балка, сверху которой расположены ступени. Чаще всего косоура два, но некоторые конструкции обходятся одним.
- Если ступени не опираются на балки, а врезаны между ними — балки называются тетивами.
- Лестничная площадка — горизонтальный участок между двумя маршами.
- Забежные лестничные ступеньки — альтернатива площадке между двумя разнонаправленными маршами. В отличие от ступеней прямого марша, они имеют трапециевидную форму.
- Средняя линия, вопреки названию, не обязательно проходит по центру лестницы. Это воображаемая линия, вдоль которой поднимается или спускается один человек в отсутствие ограничивающих передвижение факторов. Скажем, для винтовой лестницы средняя линия будет несколько смещена к более широкому краю ступени.
- Просвет — говоря попросту, расстояние от поверхности ступени до того, что находится над вашей головой, когда вы на ней стоите.
Обозначения на чертежах
Как правильно выполняется обозначение лестниц на чертежах?
Форма
Никакой экзотики нас здесь не ждет: изображение лестницы на чертеже представляет собой ее проекцию на плоскость. Если мы стараемся изобразить этаж в плане — на горизонтальную; в случае вертикального сечения — соответственно, на вертикальную.
Обычно план не дает полного представления о количестве маршей и вертикальных размерах лестницы, поэтому чертеж лестничной клетки и маршей выполняется как минимум в плане и одном сечении.
Ступеньки для лестницы – форма, материал, особенности конструкции
Как уже упоминалось, обозначение лестницы на чертеже обязательно дополняется указанием направления, в котором по лестнице поднимаются. Низ лестницы отмечается кружком, верх — стрелкой.
На схеме приведены обозначения лестниц сложной формы, пандусов и дверей.
Материалы
Обязательно ли должны, скажем, чертежи бетонных лестниц включать словесное или буквенное обозначение материала, из которого изготовлены?
Вовсе нет. В ГОСТ 5401-50 содержится инструкция по использованию графических обозначений разных материалов при строительстве.
Комментарий пессимиста: при выполнении чертежа дома или лестницы вручную должным образом заштриховать соответствующие элементы изображения куда труднее, чем написать несколько слов в сноске.
Приведем описание графических обозначений для тех материалов, которые используются при строительстве лестниц.
- Дерево в поперечном торцевом разрезе штрихуют круговыми и радиальными линиями, имитируя годовые кольца и радиальные трещины. На продольном разрезе изображаются продольные линии — имитация текстуры. Если материал деревянной лестницы не попадает в линию разреза, его не заштриховывают.
- Бетон изображается сочетанием точек и кружков неправильной формы. Если бетонная лестница армирована (собственно, иначе самонесущие конструкции из бетона и не делаются), кружки сочетаются с диагональной штриховкой.
- Стальные и вообще металлические конструктивные элементы штрихуются частыми диагональными линиями. На мелкомасштабных чертежах или при толщине элемента меньше 2 мм они отмечаются сплошной заливкой.
Обозначения некоторых строительных материалов, не вошедших в наш список.
Общие принципы и размеры
Цена проекта обычно составляет от 1 до 5 процентов строительства. В случае, если речь идет об изготовлении лестницы, ее детальный эскиз вполне может обойтись и в 1/10 полной стоимости конструкции.
Разумеется, у того, кто не прогуливал школьные уроки черчения, возникнет резонное желание выполнить работу самостоятельно. Однако для этого нужен не только энтузиазм, но и определенные базовые знания.
Уклон
- Наиболее удобным считается уклон 1:2, или 30 градусов к горизонту. Диапазон комфорта — от 25 до 40 градусов; максимальный допустимый уклон для межэтажной лестницы — 45 градусов (1:1).
Однако: чертежи чердачных лестниц выполняются исходя из уклона до 75 градусов. Причины уже упоминались: для редко посещаемых помещений компактность лестницы важнее комфорта.
- При уклоне меньше 23 градусов возможно сооружение пандуса — прямой или криволинейной наклонной площадки.
- Угол к горизонту больше 45-50 градусов означает, что по лестнице придется спускаться спиной вперед. Человеку, спускающемуся по такой лестнице, будет мешать длина его собственных голеней.
На фото достаточно крутая лестница
Основные моменты
- Марш содержит не менее трех и не более восемнадцати ступеней. Ограничение связано с безопасностью: чем длиннее лестница, тем больше вероятность получить тяжелые травмы при падении с нее.
- Все ступени в пределах прямого марша должны быть строго одинаковыми. Требование имеет отношение опять-таки к безопасности, но уже пожарной: спускаться в задымленном помещении придется по памяти, ставя ноги буквально на ощупь.
- Чертежи лестничной клетки выполняются с учетом еще одного требования безопасности: длина и ширина площадки, разделяющей лежащие на одной прямой марши, не должны быть меньше ширины лестницы. С шириной площадки все понятно: иначе она станет узким местом; но зачем регламентировать длину?
Для того, чтобы потерявший равновесие человек имел возможность остановиться.
- Если речь идет о наружной лестнице, то ведущую на нее дверь лучше сделать открывающейся вовнутрь. Там, где это невозможно, площадка делается заведомо шире дверного полотна.
Размеры
Ну, а каких оптимальных и минимальных размеров стоит придерживаться при проектировании?
Ширина лестницы связана с ее функциональностью. Если она рассчитана на одного человека, разумный минимум — 90 сантиметров. Собственно, согласно СНиП 31-02 хотя бы одна межэтажная лестница в частном доме должна иметь ширину не меньше этой.
Оптимальная ширина лестницы определяется ее назначением.
Однако: для многоквартирных домов минимум — 1050 мм. Если планируется встречное движение по лестнице двух встречных потоков людей, стоит расширить ее как минимум до 1500 мм.
Минимальная высота ограждения для частного дома — 90 см; если высота лестницы больше шести метров, ограждение не должно быть ниже 100 см.
Размеры ступени должны соответствовать нескольким требованиям:
- Ширина проступи — от 260 до 355 миллиметров. На ней должна целиком помещаться ступня высокого человека: иначе подъем по лестнице будет сопровождаться постоянным напряжением икроножных мышц.
- Высота ступени — от 125 до 200 миллиметров. При этом соотношение ширины и высоты должно, напомним, обеспечивать уклон марша в комфортном диапазоне. Идеальна с точки зрения удобства ступень шириной 300 и высотой 150 мм.
Пути на чердаки и в подвалы и в этом случае стоят особняком. Как видите, этот чертеж чердачной лестницы указывает ширину проступи всего в 199 мм при высоте ступени 230.
- Сумма ширины проступи и удвоенной высоты ступени должна быть равна среднему шагу (обычно 60 — 64 сантиметра).
Для винтовой, спиральной лестницы и для забежных ступеней существует оптимальный радиус поворота. Он равен сумме удвоенной ширины проступи и ширины лестницы. При этом проступь измеряется не по краю, а по средней линии.
Так, при ширине лестницы в 100 см и ширине проступи на средней линии в 20 см (именно такой минимум предписывается СНиП) радиус поворота не должен быть меньше 100+(20х2)=140 см.
Просвет (напомним, это расстояние от ступени до потолка) делается не меньше 2000 мм. В этом случае высокому человеку не придется пригибаться.
Просвет должен оставлять над головой самого высокого обитателя дома хотя бы 10 сантиметров свободного пространства.
Вывод
Мы предоставили в распоряжение уважаемого читателя общие принципы построения чертежей лестниц; однако без навыков черчения результат едва ли будет удовлетворительным. В размещенном видео в этой статье вас ждет интересная информация на эту тему (узнайте также об основных моментах проектирования лестниц).
Успехов в строительстве!
Как чертят схему и рассчитывают лестницы
Любая лестница состоит из основных элементов и дополнительных. Обозначение лестницы по ГОСТу должно отображать все конструктивные ее элементы, без исключения.
К основным относятся следующие элементы:
- Проступь: поверхность ступеней, по которым мы ходим.
- Подступенок: поверхность ступени по вертикали.
- Марш — конструкция, которая состоит из ступенек и элементов. Их фиксируют к лестничной площадке.
Элементы лестницы
Когда проводят расчеты, учитывают все элементы: их ширину, высоту, расстояние между ними и т. д. Во внимание берется и расстояние между маршами. Для обеспечения пожарной безопасности.
Как выполняют лестницу на плане
Лестницы бывают разными: главными, служебными или вспомогательными. В зависимости от их использования и здания. Служебные конструкции создаются для коммуникации с чердаками, подвалами и т. д. Пожарные лестницы необходимы для перемещения на чердаки высоток, крыши, для перемещения по этажам.
Пожарная лестница на плане и в реальности
По материалам изготовления конструкции бывают стальные, деревянные, железобетонные. Для полного представления, разберем лестницу по элементам. Основные — площадки и марши. Без них не бывает ни одной лесенки. Маршем называется ряд ступенек определенного количества и длины. Ступени держатся специальными крепкими балками — косоурами, которые располагаются под ними. Перила тоже примыкают к маршам. Их высота по ГОСТу должна быть не ниже 90 см. Элементы маршей несущие опираются концами на элементы площадок.
В современных строениях ступени создают из цельных, крупногабаритных площадок и маршей. Чаще всего они сделаны из железобетона. На плане условное обозначение лестницы выполняют в уменьшенном виде, но так, чтобы было понятно простому человеку. Обозначения рисуют буквами и цифрами.
Чертеж маршевой лестницы
А на каждом плане — схеме есть их расшифровка:
- ЛМ: лестничный марш;
- ЛП: лестничная площадка.
Первые цифры «говорят» о высоте этажа, подразумеваются дециметры. Вторые цифры — о половине ширины лестничных клеток. Тоже в дециметрах. Подъем с одним маршем равен высоте этажа здания. Если конструкция состоит из двух маршей, в подъеме один марш равен 1,2 высоте этажа.
Высота ступенек тоже должна быть выполнена по ГОСТу и обозначена на схеме основной конструкции. Ее параметры от 135 мм. до 180 мм. Чащ всего берут высоту ступеньки в 150 мм. Проступок должен быть шириной не более 300 мм.
Те площадки, которые находятся на уровне этажа, называют этажными площадками. А которые между — промежуточными. Каждую конструкцию сначала просчитывают, затем создают графическое изображение.
Этапы проектирования
Создание чертежа своими руками – довольно долгий и ответственный процесс. Для большего удобства и наглядности его следует разделить на несколько этапов. Так как самая распространённая модель – маршевая лестница на косоурах или тетивах, то рассмотрим именно этот вариант.
Проведение замеров
В первую очередь необходимо точно измерить длину и ширину свободного пространства, а также расстояние между этажами с учётом межэтажного перекрытия. Если покрытие пола пока не завершено, необходимо внести поправку на толщину будущего покрытия. На основании полученных данных будем рассчитывать остальные параметры лестничной конструкции:
- угол наклона лестничного марша;
- количество ступеней;
- ширина пролёта;
- будет ли конструкция оборудована площадкой и т. д.
Главный параметр на этапе подготовки – это тип конструкции. Если свободного пространства достаточно – подойдёт прямая лестница, но в ограниченных условиях лучше установить винтовую конструкцию или поворотную.
Оптимальные размеры и расчёт ступеней
Вне зависимости от типа конструкции, крепления (на тетивах, косоурах или больцах) и других моментов, лестница должна быть не только надёжной, но и удобной в использовании. Поэтому при составлении схемы своими руками, следует придерживаться оптимальных параметров:
- угол наклона – от 35 до 45 градусов (подниматься по крутой лестнице неудобно, а более пологая конструкция занимает много места).
- ширина пролёта – от 90 до 150 см (этого вполне достаточно для 2-х человек).
- высота прохода – 200 см.
- высота ступеней – 15-20 см;
- глубина проступи – 26-30 см;
- толщина проступи – 3-5 см.
Важно!Размеры всех ступенек должны быть одинаковы, иначе об удобстве использования придётся забыть. Чтобы не допустить этого, необходимо рассчитать точное количество ступеней.
Для правильного расчета количества ступеней можно воспользоваться формулой: h/a, где h–расстояние между этажами (в мм), a – высота подступенка (в мм). Например: 3000/150 = 20 шт. Если получается дробное число, можно сделать первую ступеньку нестандартного размера или сделать лестницу с площадкой (как вариант – построить внизу подиум). Также рекомендуется узнать ширину и высоту ступенек: 2a+b, где a – это высота подступёнка, b–глубина проступи. Например: 2х15+30 = 60 см, что соответствует длине человеческого шага. Однако данная формула не является единоправильной, так как в данном вопросе имеется несколько нюансов.
Детальный расчет размеров лестницы (альтернативный способ). Часть 1
Детальный расчет размеров лестницы (альтернативный способ). Часть 2
Что означают знаки на схеме лестницы в метро
В основном схема отражает правила передвижения от входа к выходу, показывает направление аварийного выхода стрелками.
Кроме того, под лестницей метро изображены знаки, предупреждающие об общей безопасности:
- как двигаться, чтобы не упасть;
- не застрять между закрывающимися дверьми;
- держаться за поручни в процессе движения эскалатора;
- не заходить за линию ограничения у платформы;
- быть внимательным при посадке или высадке из вагона;
- не препятствовать дверям в процессе их закрытия или открытия.
§ 39. Условные изображения строительных чертежах
Отдельные элементы зданий (оконные и дверные проемы, лестничные клетки) и детали внутреннего оборудования (санитарно-технические и отопительные устройства и т. п.) показывают на чертежах с помощью условных графических обозначений.
39.1. Оконные и дверные проемы. На рисунке 263 приведены условные графические обозначения и наглядные изображения оконных, дверных проемов на разрезах и планах зданий. Как видите, стены изображают на разрезах сплошными основными линиями, оконные проемы — сплошными тонкими линиями. На месте дверных проемов в плане линий не проводят, но показывают полотно двери и направление, куда открывается дверь. На вертикальных разрезах в местах дверных проемов наносят тонкие линии. Тонкими волнистыми линиями показывают обрыв стен.
Рис. 263. Условные графические изображения оконных и дверных проемов
39.2. Лестничные клетки. На рисунке 264 приведено обозначение лестницы: лестничный марш в сечении (рис. 264, а), нижний марш в плане (рис. 264, б), промежуточный марш (рис. 264, в), верхний марш (рис. 264. г).
Рис. 264. Условные графические обозначения лестниц
Линия со стрелкой на конце показывает направление подъема лестничного марша. Начинается она кружком, расположенным на изображении площадки этажа.
39.3. Отопительные устройства, санитарно-техническое оборудование. Рисунок 265 содержит поясняющие надписи и соответствующие условные обозначения отопительных устройств, санитарно-технического оборудования.
Рис. 265. Отопительные и санитарно-технические устройства
Дымоходы изображают на плане прямоугольниками, половина которых по диагонали зачернена. У вентиляционных каналов эту половину не зачерняют (проводят лишь диагональ).
Печь на твердом топливе изображают в виде прямоугольника. Черточкой показывают топку. Печь на газе изображают прямоугольником с диагональю. Плиту изображают также прямоугольником, но с двумя кружками.
Все условные изображения обводят тонкими линиями. Выполняют их в принятом для данного чертежа масштабе.
39.4. Обозначение материалов в сечениях. На рисунке 266 показаны установленные стандартом некоторые графические обозначения материалов в сечениях.
Рис. 266. Графические обозначения материалов в сечениях
В строительных чертежах допускается на сечениях небольшой площадки любой материал обозначать как металл или вообще не применять обозначение, дав поясняющую надпись на поле чертежа.
Условные обозначения, применяемые в архитектурно-строительных чертежах — Мед Др
В архитектурно-строительных чертежах с целью придания им большей ясности, наглядности и удобочитаемости применяют условные графические обозначения по ГОСТ 5401-50 для строительных материалов, элементов зданий, санитарно-технического оборудования и др., что дает возможность сократить поясняющие надписи на чертежах.
Условные обозначения
Условные обозначения строительных материалов, наиболее часто применяемых при строительстве зданий.
На рисунке приведены условные обозначения некоторых строительных материалов, наиболее часто применяемых при строительстве зданий.
Кирпичную или каменную кладку обозначают в разрезе на чертежах прямыми параллельными штрихами с уклоном 45° к горизонту. Расстояния между штрихами зависят от масштаба чертежа. В мелких чертежах принимают промежутки около 1 мм, в крупных — увеличивают их до 2 — 2,5 мм. Кладку из огнеупорного кирпича штрихуют в квадратную клетку.
Металлические части сооружений в разрезе на чертежах крупного масштаба штрихуют так же, как и кирпич, но немного гуще. На чертежах мелкого масштаба и вообще при толщине разрезанной детали на чертеже меньше 2 мм делают сплошную черную заливку тушью.
Деревянные части в поперечном разрезе (с торца) штрихуют круговыми и радиальными линиями, а в продольном разрезе штрихуют так, как идут волокна в дереве, и изображают действительное расположение слоев древесины в натуре. Деревянные части, не попадающие в разрез, не штрихуют.
Тонкие слои различных изолирующих и прокладочных материалов (толь, картон, пробка, асбест, пенька, асфальт и т. п.) изображают сплошной черной заливкой с пояснительной надписью.
Бетон изображают точками с кружками неправильной формы между ними. Кружки выполняют пером от руки. Если соприкасаются два слоя разного состава, то их разделяют горизонтальной линией. Состав бетона обозначают надписями. Железобетон, т. е. бетон, усиленный заделанными в него железными прутьями (арматурой), обозначают обыкновенной штриховкой и кружками.
Воду изображают прерывистыми горизонтальными параллельными штрихами, причем промежутки между ними увеличивают по мере удаления от поверхности.
Стены и перегородки изображают двумя параллельными линиями, пространство между которыми заштриховывают тонкими косыми линиями (под углом 45°), иногда заливают тушью, а иногда оставляют без штриховки и заливки.
Окна и двери изображают в виде стенных проемов соответствующих размеров, которые не заштриховывают, а изображают в виде параллельных линий для рам и перпендикулярных для дверных створок. Отворяющаяся часть двери называется дверным полотном. Двери могут состоять из одного и двух дверных полотен — однопольные или двухпольные. Если полотна имеют разную ширину, то дверь полуторапольная.
Изображение окон и дверей на чертежах
Изображение окон и дверей на чертежах:
а — наружная дверь; б — внутренняя дверь; в и г — окна; д — наружная дверь; е — дверь однодольная; ж — дверь двупольная;
з — окно.
Лестницы бывают внутренние, если они находятся в особом закрытом помещении, называемом лестничной клеткой, наружные (входные) и служебные (подвальные, чердачные и др.). Каждая лестница состоит из наклонных частей, называемых маршами, и горизонтальных площадок.
Марши состоят из ступеней, укладываемых по косоурам, и перил, укрепленных на ступенях. В ступенях различают их ширину, называемую проступью, и высоту — подступенок. Уклон маршей определяется отношением высоты марша к его горизонтальной проекции. Чем круче лестница, тем она труднее для подъема.
Для жилых домов уклоны принимаются 1:1,5 — 1:1,75, для чердачных лестниц 1:1, для подвальных лестниц 1:1,25. Лестница является более удобной, если подступенок высотой 15 см, а проступь 30 см.
Санитарные устройства, т. е. ванны, души, раковины, умывальники и др., изображены на рисунке.
Изображение санитарных устройств на чертеже
Отопительные приборы — печи — показывают в плане контуром их действительных очертаний (круглые, угловые, прямоугольные, кухонные очаги, ванная колонка). Как правило, между печью и стеной оставляют свободное пространство, называемое отступком, размером 8 — 10 см, заделанное с боков в 1/4 или 1/2 кирпича.
Изображение отопительных приборов на чертеже
У печей, расположенных в деревянных стенках или перегородках, устраивают разделку в один кирпич.
«Справочник помощника санитарного врачаи помощника эпидемиолога»,под ред. члена-корреспондента АМН СССР
проф. Н.Н.Литвинова
Читайте далее:
Как чертить лестницу в разрезе – фото и видео
Как чертить лестницу своими руками — к данному этапу выполнения разреза дома следует переходить практически в последний момент. На вашем разрезе должно быть практически все: оси, стены, полы и прочее. Кроме того, вам необходимо вычислить габариты лестницы и ее элементов. Как чертить лестницу, шаги:
- чертим лестничные площадки, как правило, они имеют стандартную ширину (при черчении двухмаршевой лестницы они займут всю ширину лестничной клетки) и длину (можно уточнить в сборнике железобетонных элементов);
- от внутренней грани стены следует отложить длину первой площадки и длину лестничного марша. Чертим противоположные площадки;
- делим горизонтальную проекцию лестничного марша на количество степеней n-1. То есть, если у нас 10 ступеней, то делить нужно на 9.
- от свободных краев площадки следует отложить ширину одной проступи в направлении к стене. Это необходимо для формирования забежной ступени. Отметим, что верхний проступенок входит в ширину площадки;
- проводим вертикальные линии через подступенки и проводим горизонтальные, которые станут проступнями;
- вычерчиваем перила.
После выполнения чертежа лестницы, разрез готов. Далее переходят к черчению фасада дома.



Чертежи лестниц
Лестницы являются ответственной частью многоэтажного здания, так как служат не только для сообщения между этажами, но и для эвакуации при пожаре или другой аварийной ситуации.
По назначению их подразделяют на основные, или главные, и служебные, или вспомогательные. Служебные лестницы используют для сообщения с подвалами, чердаками и в качестве запасных для эвакуации людей в случае пожара. Пожарные лестницы служат для наружного доступа на этажи, крышу и чердак.
По материалу лестницы подразделяют на железобетонные, деревянные и стальные. По способу изготовления различают сборные и монолитные железобетонные. В настоящее время, в основном, распространены сборные лестницы.
Каждая лестница состоит из маршей и площадок. Марш представляет собой конструкцию, состоящую из ряда ступеней. Ступени опираются на балки — косоуры, располагаемые под ступенями, или на тетиву, к которой они примыкают. В состав маршей входят ограждения — перила. Высота ограждения 90—95 см. Несущие элементы марша своими концами опираются на несущие элементы площадок— площадочные балки.
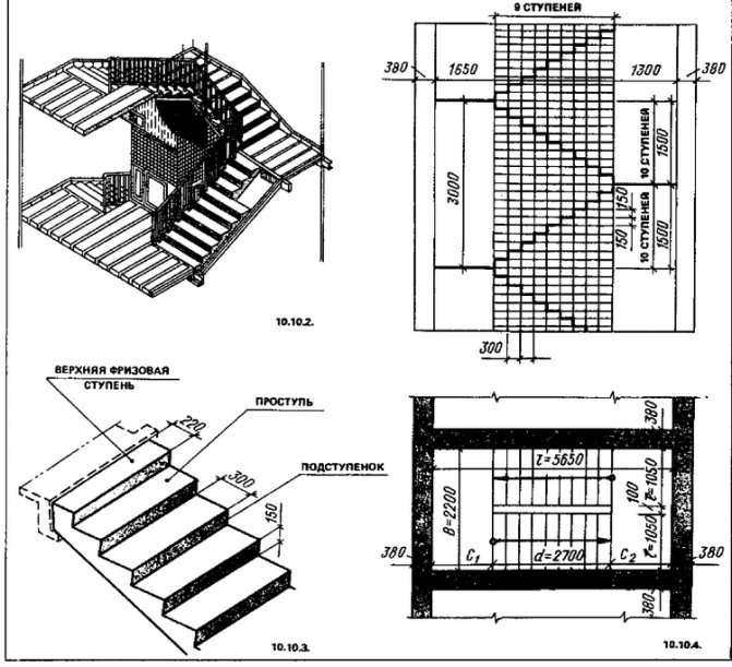
В современных зданиях лестницы монтируют, в основном, из крупноразмерных цельных лестничных маршей и площадок. Эти элементы изготавливают из железобетона (рис. 10.10.1).
Марки крупноразмерных лестничных маршей состоят из букв и цифр: буквы обозначают наименование изделия: ЛМ — лестничный марш; ЛП — лестничная площадка. Первые две цифры марки лестничного марша обозначают высоту этажа в дециметрах, вторые — половину ширины лестничной клетки в дециметрах (в свету). Например, ЛМ 30—11 — это марш для здания высотой этажа 3000 мм и шириной лестничной клетки 2200 мм.
Первые две цифры марки лестничной площадки обозначают ширину лестничной клетки в свету в дециметрах, вторые две цифры — ширину лестничной площадки в дециметрах. Так, марка ЛП 22—15 обозначает лестничную площадку, установленную в лестничной клетке шириной 2200 мм. Ширина площадки этой марки 1500 мм. Сборные железобетонные лестницы из мелкоразмерных элементов монтируют из отдельных косоуров, ступеней, площадочных балок и плит. В зависимости от числа маршей, находящихся в пределах высоты одного этажа, лестницы делят на одно-, двух- (см. рис. 10.10.7) и трехмаршевые (рис. 10.10.2).
Высота подъема одномаршевой лестницы равна высоте этажа. У двухмаршевой лестницы высота подъема одного марша принимается равной половине высоты этажа. Чаще всего применяют двухмаршевые лестницы. Ширину маршей обычно берут в пределах 90—240 см, для вспомогательных лестниц— не менее 90 см, для основных — не менее 105 см. Лестничные марши устанавливают с уклонами: 1:2, 1:1,75; 1:1,5 и т.д. В марше допускается не менее 3 и не более 18 ступеней. Каждый марш для одной из лестничных площадок будет восходящим, т.е. поднимающимся вверх, а для другой — нисходящим, т.е. опускающимся вниз. Восходящий марш начинается нижней фризовой ступенью, служащей переходом к площадке, а нисходящий марш — верхней фризовой ступенью. Нижняя и верхняя фризовые ступени марша, совпадающие с полом площадок, имеют особые очертания. Все остальные ступени марша одинаковы. Ступени лестниц характеризуются высотой подступенка h и шириной проступи b. Для удобства пользования лестницей необходимо, чтобы удвоенная высота подступенка h и ширина проступи b в сумме равнялись среднему шагу человека, принимаемому от 570 до 640 мм. Чаще всего эту величину принимают равной 600 мм. Таким образом, b + 2h = 600,
Высота подступенка находится в пределах 135—180 мм (чаще всего 150 мм). Ширина проступи 250— 300 мм. Для основных лестниц для увязки с ЕМС (единая модульная система) ширину проступи принимают 300 мм, тогда 300 + 2×150 = 600 (рис. 10.10.3).
Лестничные площадки, устраиваемые на уровне каждого этажа, называют этажными, а между этажами — промежуточными. Ширину лестничных площадок принимают не менее ширины марша и не менее 1200 мм, в зданиях с лифтами площадки должны быть шириной не менее 1600 мм, а в больницах — не менее 1900 мм.
Ниже рассматривается пример разбивки двухмаршевой лестницы.
Предварительно выполняют расчет, а затем графическое построение (рис. 10.10.4).
Предположим, что высота этажа Н = 3000 мм, ширина марша L = 1050 мм, уклон лестницы 1:2. Для этого уклона выбирают ступень 150×300 мм. Ширина лестничной клетки В равна суммарной ширине обоих маршей плюс промежуток между ними. Промежуток, который необходим для пропуска пожарного шланга, должен быть не менее 100 мм. Для данного расчета принимаем промежуток 100 мм.
B=2L+ 100 = 2×1050 + 100 = 2200 мм.
Высота одного марша будет Н:2= 3000_2= 1500. Число подступенков в одном марше n — 1500_150= 10.
Число проступей в одном марше будет на единицу меньше числа подступенков, так как верхняя проступь располагается на уровне площадки. Поэтому при вычерчивании лестницы в плане нужно подсчитать число ступеней не по промежуткам между линиями, а по самим линиям, обозначающим границу ступеней (см. рис. 10.10.4).
Длина горизонтальной проекции марша (его заложение):
d= 300( n-1)= 300(10-1) = 300×9 = 2700 мм.
Принимая ширину промежуточной площадки С1 = 1650 мм, а ширину этажной С2= 1300 мм, определяем полную минимальную длину лестничной клетки
L = d+ C1 + С2 = 2700 + 1650 + 1300 = 5650 мм.
Графическую разбивку лестницы выполняют в такой последовательности: высоту этажа делят на число частей, равное числу подступенков в этаже; через полученные точки проводят горизонтальные прямые линии. Затем горизонтальную проекцию (заложение марша) делят на число проступей без одной; через полученные точки проводят вертикальные прямые. По полученной сетке вычерчивают профиль лестницы.
Контуры стен лестничной клетки обводят линиями толщиной, принятой для плана этажей, контуры ступеней площадки и т.д.— линиями толщиной S/2. На чертежах лестничные клетки изображают в плане (в масштабе 1:100) и разрезе (в масштабе 1:50 или 1:100).
Ступени лестницы можно построить и другим способом. После вычерчивания стен лестничной клетки горизонтальными линиями отмечаем этажные лестничные площадки шириной 1650 мм и промежуточные шириной 1300 мм. Приняв, как было условлено при расчете, ширину ступени, т.е. проступь, равную 300 мм, откладываем от края линии площадки внутрь лестничной клетки (рис. 10.10.5, а—г) девять раз по 300 мм и через эти точки проводим вертикальные линии построения. Чтобы получить точки 1, 3, 5, отложим от края площадки ширину ступени, т.е. 300 мм. Точки 2, 4 и 6 берем на краю линии, обозначающей площадку. Соединим тонкой наклонной линией точки 1 и 2, 3 и 4, 5 и 6. Они пересекают вертикальные линии разбивки в точках, через которые проводим горизонтальные линии — проступи и вертикальные — подступенки.
На рис. 10.10.6 приведен чертеж лестничной клетки с поэтажными планами. Положение секущей плоскости может быть указано как на отдельном чертеже (см. рис. 10.10.5), так и на чертеже разреза всего здания.
Рабочие чертежи лестницы представляют собой планы лестничной клетки различных этажей (рис, 10.10.7).
На рабочих чертежах лестниц указывают марку лестничных площадок, лестничных маршей, марки координационных осей стен лестничной клетки и т.п. Кроме того, чертеж сопровождают необходимыми поясняющими надписями и условными обозначениями.
На чертеже лестничной клетки наносят все необходимые размеры, неуказанные на планах и разрезах, а также размеры между координационными осями. На лестничных маршах показывают контур ограждения.
Иногда в зданиях из сборных элементов монтажные схемы установки и ограждения выполняют отдельно. Чертеж крупноблочной лестницы из сборных маршей и площадок дан на рис. 10.10.8.
Разработка плана здания
План первого этажа дома с устройством лестницы в холле
Лестница – это составляющая часть любого сооружения, высота которого более одного этажа. Поэтому прежде всего необходимо составить план лестницы на чертеже первого этажа, и определить ее отметку на втором этаже. Это даст возможность выбрать тип конструкции, ее габариты.
План – это горизонтальная проекция среза этажа на плоскости. На нем указываются:
- Габаритные размеры здания;
- Расположение всех комнат этажа с указанием их внутренних размеров;
- Размещение лестничного марша;
- Места установки окон и дверей, размеры проемов для них;
- Толщина несущих стен, перегородок и колонн.
При составлении плана всего здания необходимо соблюдать определенные правила:
- Внизу плана располагается главный фасад;
- При размещении на одном листе планов нескольких этажей, их следует вычерчивать сверху вниз или слева направо, по возрастанию номеров этажей;
- На плане указываются тонкими линиями направление открывания дверей;
- Лестничный марш дополняется стрелкой, которая указывает его уклон снизу-вверх: внизу марша всегда начало стрелки.
Терминология
Перед тем, как сделать чертеж лестницы, стоит познакомиться с названием разных моделей и составляющих элементов конструкций.
Примеры изображения типа лестницы в чертежах для сборки, представлены в таблице:
| Тип лестницы | Особенности |
|
|
Изображение лестниц на чертежах имеет вид прямых линий. |
|
|
Внешний вид этой лестницы — круг, в центре которого расположена опорная стойка. |
|
|
Чертеж спиральной лестницы отличается от винтовой. В этом случае ее габариты описываются окружностью, внутренняя опора которой расположена не в геометрическом центре конструкции, а на некотором удалении от него. |
|
|
Чертеж лестницы с поворотом отличается наличием двух маршевых участков, между которыми расположены забежные ступеньки или промежуточные площадки. |
| Модульная | Такие лестницы сборные — чертеж включает несколько одинаковых конструктивных элементов. |
|
|
Несущим каркасом конструкции служат стальные элементы, которые связывают ступеньки между собой — больцы. |
|
|
Чертежи готовых лестниц пожарных отличаются от обычных маршевых конструкций, размерами и углами наклона. Они могут быть вертикальными, как на фото. |
Помимо назначения и внешнего вида, лестницы различаются материалами для их изготовления. Это могут быть:
- Железобетон;
- Металл;
- Дерево;
- Стекло;
- Натуральный или искусственный камень (подробней читайте тут);
- Керамика;
- Некоторые виды пластика.
Совет: Стационарные пожарные лестницы должны изготавливаются лишь из металла.
Элементы конструкций
Перед тем, как изобразить лестницу на чертеже, необходимо правильно выбрать ее составляющие элементы.
К ним относятся:
- Лестничный марш — это прямой участок конструкции;
- Проступь, представляет собой горизонтальную поверхность ступеньки;
- Подступенок – вертикальная часть конструкции, которая подпирает проступь;
Важно! Часто винтовые, консольные, а иногда и маршевые модели изготавливаются без подступенков.
- Косоур — опорный элемент, сверху которого размещаются ступеньки. Обычно их в конструкции два, но некоторые изделия имеют один элемент;
- Тетивы . Это балки, в которые ступеньки врезаются, а не опираются на них;
- Промежуточная площадка — горизонтальный участок, расположенный между двумя маршами;
- Ступеньки забежные — это альтернативные элементы площадки между маршами, имеющими трапециевидную форму;
- Просвет — расстояние от ступеньки до элементов, расположенных над головой;
- Средняя линия. Это виртуальная линия, вдоль которой один человек поднимается или спускается. Для винтовой модели средняя линия несколько смещается к более широкому торцу ступеньки.
Чертежи лестниц: изображения и обозначение лестничной конструкции на схеме (фото и )
Чертежи лестниц: обозначения, термины и размеры
Как обозначается лестница на чертеже? Как начертить лестницу в автокаде, каким должен быть ее уклон и размер ступени? Как правильно называются элементы конструкции лестничного марша? Ответы на эти и некоторые другие вопросы мы постараемся найти в статье.
Человек, не обделенный художественным талантом, может нарисовать лестницу своей мечты. Но строитель его не поймет.
План здания
Как правило, чертеж лестницы является частью плана здания или этажа. Со знакомства с понятием плана мы и начнем.
Стоит уточнить: разумеется, при изготовлении сколь-нибудь сложных конструкций составляется и детальный эскиз с указанием тех размеров, которые на плане здания обычно отсутствуют. Однако лестница в любом случае указывается на общем плане.
Итак, план – это проекция горизонтального среза этажа или дома целиком на плоскость. Какая информация в нем присутствует?
- Расположение всех помещений этажа с указанием их размеров.
- Расположение лестничных клеток и маршей.
- Расположение оконных и дверных проемов – тоже, разумеется, с размерами.
- Конструкция здания (включая расположение опор и пролетов перекрытий).
- Толщина несущих стен и колонн.
Составление планов подчиняется определенным правилам:
- Главный фасад находится внизу плана.
План этажа коттеджа. Фасад находится внизу.
- Если на одном листе расположены планы нескольких этажей, они располагаются по возрастанию номера этажа слева направо или сверху вниз.
- На плане указывается направление открывания дверей.
- Чертеж лестничного марша дополняется стрелкой, указывающей уклон снизу вверх: начало стрелки всегда внизу марша.
Терминология
Как правильно называются готовые лестницы различных типов и их элементы?
Типы лестниц
- Винтовая лестница закручена вокруг столба. Ее характерная особенность – ступени треугольной или трапециевидной формы. Обычно используется в условиях дефицита места; довольно неудобна для транспортировки габаритных предметов.
- Маршевая – ее полная противоположность: прямоугольные ступни и прямые линии.
- Спиральная лестница отличается от винтовой тем, что описывает окружность на удалении от геометрического центра.
- У консольной отсутствует несущий каркас – ступени одной стороной вмурованы в стену.
- Модульная собирается из одинаковых конструктивных элементов. Соединения остаются разборными.
Чертежи модульной лестницы должны содержать не только изображение элемента, но и схему монтажа.
- Больцевая вместо несущего каркаса использует в качестве опоры стальные элементы, связывающие ступени между собой – больцы.
- Чердачные и подвальные лестницы отличаются от прочих довольно условно: для них характерен больший уклон. Причина – высокие требования к компактности и низкие – к удобству. Однако они могут и не отличаться от межэтажных: не везде требуется экономия площади.
- Пожарные могут быть как маршевыми, так и вертикальными. Вертикальные лестницы при высоте больше шести метров комплектуются ограждениями.
Помимо внешнего вида и назначения, лестницы могут различаться материалом. Популярные материалы для их изготовления своими руками – железобетон, сталь и древесина; наряду с ними могут применяться более экзотические: стекло, искусственный или натуральный камень, керамика и некоторые пластики.
Обратите внимание: исключение – стационарные пожарные лестницы. Они изготавливаются только из стали.
Чертеж пожарной лестницы с полукруглым ограждением. Материал – сталь.
Элементы
- Уже упомянутый нами марш – всего лишь прямой участок лестницы.
- Проступь – горизонтальная поверхность ступени.
- Подступенок – вертикальный конструктивный элемент, подпирающий проступь.
Однако: винтовые, консольные и некоторые маршевые лестницы часто обходятся без подступенков.
- Косоур – опорная балка, сверху которой расположены ступени. Чаще всего косоура два, но некоторые конструкции обходятся одним.
- Если ступени не опираются на балки, а врезаны между ними – балки называются тетивами.
- Лестничная площадка – горизонтальный участок между двумя маршами.
- Забежные лестничные ступеньки – альтернатива площадке между двумя разнонаправленными маршами. В отличие от ступеней прямого марша, они имеют трапециевидную форму.
- Средняя линия, вопреки названию, не обязательно проходит по центру лестницы. Это воображаемая линия, вдоль которой поднимается или спускается один человек в отсутствие ограничивающих передвижение факторов. Скажем, для винтовой лестницы средняя линия будет несколько смещена к более широкому краю ступени.
- Просвет – говоря попросту, расстояние от поверхности ступени до того, что находится над вашей головой, когда вы на ней стоите.
Обозначения на чертежах
Как правильно выполняется обозначение лестниц на чертежах?
Форма
Никакой экзотики нас здесь не ждет: изображение лестницы на чертеже представляет собой ее проекцию на плоскость. Если мы стараемся изобразить этаж в плане – на горизонтальную; в случае вертикального сечения – соответственно, на вертикальную.
Обычно план не дает полного представления о количестве маршей и вертикальных размерах лестницы, поэтому чертеж лестничной клетки и маршей выполняется как минимум в плане и одном сечении.
А – сечение, Б – план нижнего марша, В – план промежуточного марша, В – план верхнего марша.
Как уже упоминалось, обозначение лестницы на чертеже обязательно дополняется указанием направления, в котором по лестнице поднимаются. Низ лестницы отмечается кружком, верх – стрелкой.
На схеме приведены обозначения лестниц сложной формы, пандусов и дверей.
Материалы
Обязательно ли должны, скажем, чертежи бетонных лестниц включать словесное или буквенное обозначение материала, из которого изготовлены?
Вовсе нет. В ГОСТ 5401-50 содержится инструкция по использованию графических обозначений разных материалов при строительстве.
Комментарий пессимиста: при выполнении чертежа дома или лестницы вручную должным образом заштриховать соответствующие элементы изображения куда труднее, чем написать несколько слов в сноске.
Приведем описание графических обозначений для тех материалов, которые используются при строительстве лестниц.
- Дерево в поперечном торцевом разрезе штрихуют круговыми и радиальными линиями, имитируя годовые кольца и радиальные трещины. На продольном разрезе изображаются продольные линии – имитация текстуры. Если материал деревянной лестницы не попадает в линию разреза, его не заштриховывают.
- Бетон изображается сочетанием точек и кружков неправильной формы. Если бетонная лестница армирована (собственно, иначе самонесущие конструкции из бетона и не делаются), кружки сочетаются с диагональной штриховкой.
- Стальные и вообще металлические конструктивные элементы штрихуются частыми диагональными линиями. На мелкомасштабных чертежах или при толщине элемента меньше 2 мм они отмечаются сплошной заливкой.
Обозначения некоторых строительных материалов, не вошедших в наш список.
Общие принципы и размеры
Цена проекта обычно составляет от 1 до 5 процентов строительства. В случае, если речь идет об изготовлении лестницы, ее детальный эскиз вполне может обойтись и в 1/10 полной стоимости конструкции.
Разумеется, у того, кто не прогуливал школьные уроки черчения, возникнет резонное желание выполнить работу самостоятельно. Однако для этого нужен не только энтузиазм, но и определенные базовые знания.
Уклон
- Наиболее удобным считается уклон 1:2, или 30 градусов к горизонту. Диапазон комфорта – от 25 до 40 градусов; максимальный допустимый уклон для межэтажной лестницы – 45 градусов (1:1).
Однако: чертежи чердачных лестниц выполняются исходя из уклона до 75 градусов. Причины уже упоминались: для редко посещаемых помещений компактность лестницы важнее комфорта.
- При уклоне меньше 23 градусов возможно сооружение пандуса – прямой или криволинейной наклонной площадки.
- Угол к горизонту больше 45-50 градусов означает, что по лестнице придется спускаться спиной вперед. Человеку, спускающемуся по такой лестнице, будет мешать длина его собственных голеней.
На фото достаточно крутая лестница
Основные моменты
- Марш содержит не менее трех и не более восемнадцати ступеней. Ограничение связано с безопасностью: чем длиннее лестница, тем больше вероятность получить тяжелые травмы при падении с нее.
- Все ступени в пределах прямого марша должны быть строго одинаковыми. Требование имеет отношение опять-таки к безопасности, но уже пожарной: спускаться в задымленном помещении придется по памяти, ставя ноги буквально на ощупь.
- Чертежи лестничной клетки выполняются с учетом еще одного требования безопасности: длина и ширина площадки, разделяющей лежащие на одной прямой марши, не должны быть меньше ширины лестницы. С шириной площадки все понятно: иначе она станет узким местом; но зачем регламентировать длину?
Для того, чтобы потерявший равновесие человек имел возможность остановиться.
- Если речь идет о наружной лестнице, то ведущую на нее дверь лучше сделать открывающейся вовнутрь. Там, где это невозможно, площадка делается заведомо шире дверного полотна.
Размеры
Ну, а каких оптимальных и минимальных размеров стоит придерживаться при проектировании?
Ширина лестницы связана с ее функциональностью. Если она рассчитана на одного человека, разумный минимум – 90 сантиметров. Собственно, согласно СНиП 31-02 хотя бы одна межэтажная лестница в частном доме должна иметь ширину не меньше этой.
Оптимальная ширина лестницы определяется ее назначением.
Однако: для многоквартирных домов минимум – 1050 мм. Если планируется встречное движение по лестнице двух встречных потоков людей, стоит расширить ее как минимум до 1500 мм.
Минимальная высота ограждения для частного дома – 90 см; если высота лестницы больше шести метров, ограждение не должно быть ниже 100 см.
Размеры ступени должны соответствовать нескольким требованиям:
- Ширина проступи – от 260 до 355 миллиметров. На ней должна целиком помещаться ступня высокого человека: иначе подъем по лестнице будет сопровождаться постоянным напряжением икроножных мышц.
- Высота ступени – от 125 до 200 миллиметров. При этом соотношение ширины и высоты должно, напомним, обеспечивать уклон марша в комфортном диапазоне. Идеальна с точки зрения удобства ступень шириной 300 и высотой 150 мм.
Пути на чердаки и в подвалы и в этом случае стоят особняком. Как видите, этот чертеж чердачной лестницы указывает ширину проступи всего в 199 мм при высоте ступени 230.
- Сумма ширины проступи и удвоенной высоты ступени должна быть равна среднему шагу (обычно 60 – 64 сантиметра).
Для винтовой, спиральной лестницы и для забежных ступеней существует оптимальный радиус поворота. Он равен сумме удвоенной ширины проступи и ширины лестницы. При этом проступь измеряется не по краю, а по средней линии.
Так, при ширине лестницы в 100 см и ширине проступи на средней линии в 20 см (именно такой минимум предписывается СНиП) радиус поворота не должен быть меньше 100+(20х2)=140 см.
Просвет (напомним, это расстояние от ступени до потолка) делается не меньше 2000 мм. В этом случае высокому человеку не придется пригибаться.
Просвет должен оставлять над головой самого высокого обитателя дома хотя бы 10 сантиметров свободного пространства.
Размеры проема в перекрытии над прямым лестничным маршем определяются, прежде всего, его уклоном. Типичная длина при уклоне 1:2 – 3,7 метра .
Вывод
Мы предоставили в распоряжение уважаемого читателя общие принципы построения чертежей лестниц; однако без навыков черчения результат едва ли будет удовлетворительным. В размещенном в этой статье вас ждет интересная информация на эту тему (узнайте также об основных моментах проектирования лестниц ).
Успехов в строительстве!



























