Общая характеристика
Видов лестниц по своей проектировке существует множество, но не все они подходят в определённых условиях. В том случае, когда необходимо максимально сэкономить пространство, выбирают лестницу с поворотом на 180, особенно тот вариант, в котором площадка заменяется забежными ступенями. В этом случае нагрузка, оказываемая на лестницу, распределяется на две стенки. Используя такую модель маршевой лестницы, можно не только сэкономить свободное пространство, но и повысить степень безопасности во время перемещения.
Для достижения развёрнутого угла мастера используют следующие архитектурные особенности:
- установка двойного или тройного марша с площадкой прямоугольной формы;
- монтаж двух лестниц с использованием забежных ступеней;
- устройство конструкции полувинтового вида;
- комбинация всех или нескольких вариантов перечисленных выше.
Лестница с площадкой и забежными ступенями
Выполнить самостоятельный монтаж лестницы несложно, так как на рынке представлен довольно большой выбор готовых элементов для сборки. Деревянную лестницу с поворотом на 180 градусов можно спроектировать и смонтировать, выбрав нужные модули.






Поворотная лестница на второй этаж своими руками
Конструкция поворотной лестницы несложная. Выполнить красивую и прочную лестницу можно своими руками. Для начала необходимо определить какого она будет вида, затем выбрать материал. Наиболее удобна для самостоятельного монтажа древесина. Если выбирать деревянную лестницу, то важно подобрать сорт дерева для её изготовления.
Лестницы изготавливают из твёрдых сортов древесины: дуб, клён, лиственница, бук. Бюджетным вариантом может быть древесина сосны.
После выбора древесины необходимо произвести расчёты. Наиболее простым и достоверным способом расчёта лестницы является использование онлайн калькулятора. Составленный программой чертёж можно распечатать на принтере для удобного использования.
Следующим этапом будет подготовка необходимого инструмента для монтажных работ:
- Уровень строительный;
- Ножовка по дереву;
- Шуруповерт;
- Угольник;
- Электролобзик.
Все древесные материалы должны быть тщательно просушены и обработаны антисептическими растворами. Когда все материалы подготовлены можно приступать к монтажу.
Весь процесс можно разделить на этапы:
- Установка несущих элементов;
- Установка ступеней и подступенков;
- Установка ограждающих элементов.


Этап №1 – выбор формы и вида
Особенностью монтажа поворотной лестницы в частном доме является тот факт, что здесь не требуется беспрекословно придерживаться всех норм и ГОСТов. Но, основные моменты необходимо сохранить, в противном случае пренебрежение ими может повлечь за собой понижение степени безопасности. Прежде чем выбрать нужную вам модель лестницы, необходимо определиться с формой каркаса, а также изучить особенности той или иной конструкции.
Форма каркаса
Лестница может быть изготовлена как из дерева, так и из металла. В любом случае её каркас имеет три варианта устройства:
- Косоуры. Предполагается использование одной или двух несущих балок. На них монтируются ступеньки.
- Тетивы. Устройство каркаса построено на наличии двух балок, поддерживающих ступени по бокам.
- Больцы. С одной стороны ступени крепятся к стене, с другой – к полу и потолку при помощи металлических стержней.
Конструктивная особенность
По особенностям своей конструкции лестницы подразделяют на такие виды:
- Маршевого типа. В конструкцию входят отдельные марши. По их количеству лестницы подразделяются на одно-, двух- и более маршевые. По своей форме бывают прямые, лестницы на 180 градусов с площадкой или с забежными ступенями. Последние чаще встречаются с обеспечением поворота на 90, 180, 360.
Статья по теме: Виды и особенности модульных лестниц [варианты сборки системы своими руками]
- Винтового типа. Такие лестницы имеют поворот вокруг своей оси. Их используют, если в доме не хватает свободного пространства для маршевой конструкции. Но, существуют трудности в их расчёте и монтаже.
- Складного типа. Такой вариант лестниц относится к переносному виду. Для стационарной установки они не подходят.
На видео: деревянная лестница с забежными ступенями (опыт горожанки).
Как пользоваться калькулятором лестницы онлайн с поворотом 180 градусов (видео)
Важно при монтаже строго следовать всем расчётам, выполненными онлайн программой. После завершения монтажа следует произвести финальную отделку лестницы. Конструкцию из благородных сортов древесины лучше покрыть лаком, что сохранит естественный рисунок и цвет. Уход за деревянной конструкцией имеет свои особенности. Следует избегать обильного намокания, исключить агрессивные моющие средства, мыть конструкцию нужно в меру мокрой тряпкой и протирать сухой. При правильном монтаже и уходе, поворотная лестница прослужит долгие годы.
Этап №2 – выбор места расположения
Выбирая место установки лестницы, необходимо опираться на следующие моменты:
- площадь помещения;
- расположение помещения в обобщённом плане дома;
- форма самой лестницы.
Если в доме свободного пространства мало, то большая монолитная лестница будет не уместна. Мало того, что она займет много места, вокруг неё еще нужно обыграть пространство. Для малогабаритной комнаты подойдет вариант у стены, забежная лестница с поворотом на 180 градусов или винтовая, размещённая в угловой части помещения.




Как сократить размер проёма для лестницы
Оптимальными для комфортного пользования лестницей являются следующие параметры:
- высота ступени не более 170 мм;
- ширина поступи – 300 мм;
- угол уклона от 25 до 40 градусов.
Но такие данные требуют достаточно место для установки лестницы, а также широкого проёма на второй этаж. Уменьшить размер проёма можно путём пропорционального уменьшения размеров высоты и ширины ступени.
Этап №3 – расчёт параметров
При устройстве лестницы с поворотными ступенями на 180 градусов необходимо знать, какие параметры обязательно учитываются и как правильно их рассчитать. По рекомендациям профессионалов, достаточно учесть несколько основных факторов, чтобы конструкция имела презентабельный вид, была удобна и безопасна в эксплуатации.
Высота лестницы
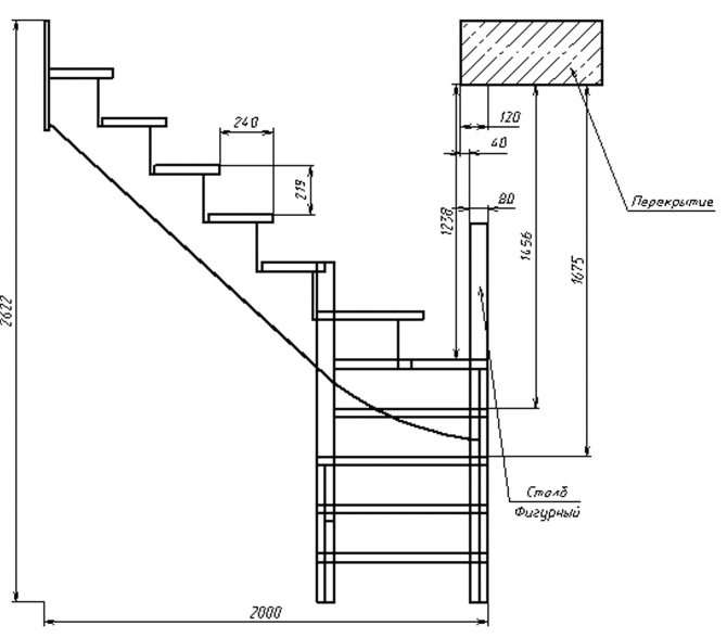
Высотой лестницы является величина, которая выражает расстояние от уровня пола до перекрытия первого этажа. Обычно верхний конец конструкции упирается в потолок. Непосредственно над конструкцией делается проём для удобства передвижения. Следующий нюанс, который необходимо учесть для практичности конструкции, это расстояние от ступени до потолка. Для этого учитывается рост самого высокого человека в семье и прибавляется 10 см.
По нормативным документам стандарт составляет 2 м. Этот параметр должен соблюдаться на протяжении всей лестницы.
Длина лестницы (длина марша)
В тех случаях, когда обустраивается маршевая лестница в 180 градусов с площадкой традиционного типа, её длина приравнивается к длине одномаршевого пролёта или сумме маршей, на которые она разделяется. В последнем случае необходимо прибавлять и длину площадки, которая монтируется между ними.
Если речь идёт о винтовой конструкции, то рассчитать необходимо среднюю длину марша. Замеры нужно определять на расстоянии 50 см от края пролета. Аналогичные расчёты выполняют и для лестницы с забежными ступенями.
Ширина лестницы в частном доме
Шириной лестницы является параметр, выражающий расстояние между двумя поручнями конструкции или от стены до поручня. По стандартам она может составлять:
- 900-1000 мм;
- 1250 мм;
- 1500 мм.
Статья по теме: Как сделать веревочную лестницу: способы изготовления своими руками [+40 примеров на фото]
Многие нормативные документы предполагают определённые стандарты некоторых значений, которые необходимо учитывать при составлении проекта лестницы.
Ширина маршевой лестницы
Определённые параметры ширины маршевой лестницы определяют её функциональность:
- 1500 мм – конструкция, обеспечивающая высокий уровень комфорта;
- 1000-1200 мм – модель с такой шириной гарантирует комфортное пользование;
- 800-1000 мм – это рекомендуемая ширина для конструкции, которая располагается непосредственно у стены;
- параметры меньше 800 мм подходят для устройства конструкций вспомогательного типа.
Ширина маршевой лестницы с забежными ступенями
Для конструкции, обустраиваемой с забежными ступенями, выбор невелик. Минимальная её ширина должна быть 1100 мм.
Ширина винтовой лестницы
Винтовая лестница может обустраиваться со следующими параметрами ширины: 1400 мм – для полноценного комфортного использования, 1100 мм – минимальные параметры. Причиной этому является форма забежных ступеней — они сужаются к центру, следовательно, полезная площадь уменьшается. Компенсируется это за счёт ширины устройства.
Угол наклона лестницы (крутизна)
Важным параметром для удобного пользования лестницей является угол её наклона. Для каждого вида он разный. Несмотря на то, что большой угол наклона позволяет значительно сэкономить пространство в доме, лестница становится менее комфортной.
Приведём некоторые нормы, которые обычно используют для устройства лестниц в отношении их крутизны:
- пожарные и хозяйственные виды, устанавливаемые непосредственно на стены – от 75 до 90;
- лестницы приставного типа – от 45 до 75;
- конструкции для жилых помещений – от 20 до 75;
- для пандусов подходят параметры от 0 до 24.
Оптимальным показателем угла наклона для комфортного пользования лестницей в жилых домах считаются параметры от 24 до 37. Если лестница имеет крутизну свыше 45, то спуск необходимо производить только спиной вперёд.
Число ступеней лестницы
Следующий вопрос, на который следует ответить при проектировании, количество ступеней. В этом плане норм не существует. Всё зависит от длины лестницы. Специалисты рекомендуют делать одинаковое количество ступеней в каждом марше. Но, на практике не всегда так получается.
Высота поступи (расстояние между ступенями лестницы)
Оптимальный вариант для комфортного передвижения по лестнице является высота поступи в 150 мм. Часто при устройстве конструкции возникает проблема лишней высоты. Её легко устранить путём регулирования этого параметра между первой и второй ступенькой или последней и предпоследней.
Шаг лестницы (ширина ступени)
Удобное перемещение по лестничной конструкции обеспечивает расположение ступни человека на ступени. Обеспечить это может только ширина элемента не менее 230 мм. Реально в обиходе можно встретить лестницы с шагом и 100 мм, но удобства достичь в этом случае невозможно. Часто это заканчиваются травмами. Привносят неудобство в использовании и ступени шириной свыше 650 мм, так как через них постоянно сбиваются и оступаются.
Ширину ступени увеличивают посредством обустройства некоторого её нависания над опорой. В этом случае имеются свои нормы. То есть, нависать ступенька не должна больше, чем на 50 мм.
Это рекомендуемые значения для безопасного передвижения
Длина ступени лестницы
Параметр длины ступеньки определяется строением деревянной лестницы. В том случае, если она состоит из двойной тетивы, длина ступеньки равна расстоянию между ними (минимальное значение — 80 см). Конструкция на косоуре предполагает длину элементов по желанию заказчиков.
Статья по теме: Конструктивные особенности лестницы «гусиный шаг» и пошаговое изготовление конструкции
Длина ступени соответствует ширине лестничного марша
Расчет лестниц с поворотом на 90°
Укажите необходимые размеры в миллиметрах
X — длина проема, который будет занимать лестницаY — высота от уровня пола первого этажа до уровня пола второго этажаE — ширина лестницыF — выступ ступенейZ — толщина ступеней
C — количество всех ступенейP — количество ступеней + площадка
Расчет поворотных лестниц несколько сложнее расчета прямых лестниц. Расчет удобства лестницы вычисляется по формуле, основанной на длине шага. Длина шага человека составляет от 60 до 66 см, в среднем — 63 см. Удобная лестница соответствует формуле: 2 высоты ступени + глубина ступени = 63±3 см.
Наиболее удобный наклон лестницы — от 30° до 40°. Глубина ступеней лестницы должна соответствовать 45 размеру обуви — не меньше 28-30 см. Недостаток глубины можно компенсировать выступом ступени. Высота ступени должна быть до 20-25 см.
Так же добиться удобства поворотной лестницы можно изменяя высоту площадки.
Программа нарисует чертежи поворотной лестницы с основными углами и размерами. На чертежах показаны общие размеры лестницы, разметка верха ступеней на тетивах, углов ступеней и основные размеры самих ступеней.
У вас пока нет сохраненных расчетов. Зарегистрируйтесь или войдите, что бы иметь возможность сохранять свои расчеты и отправлять их по почте.
Открывать результаты расчета показывать рядом с формой раскрывать окно расчета
Автор проекта: Дмитрий Житов
Facebook Vkontakte Приглашаю вас в друзья.
Расчет лестниц с поворотными ступенями на 90°.
Деревянная лестница с поворотными ступенями позволяет значительно съэкономить пространство в доме без потери удобства и функциональности
При расчете обратите внимание на оптимальное число поворотных ступеней. По моему опыту оптимально 3 ступени при ширине лестницы в 80 см
Больше — ступени будут слишком узкими и поэтому неудобными.
Если проем располагается только над верхней частью лестницы, то важна высота в месте поворота до перекрытия, во избежание травм головы. Она должна быть не менее 2 метров.
При данной конструкции ширина лестницы играет важную роль. Поскольку напрямую влияет на удобство поворотных ступеней. Чем шире лестница — тем большее количество ступеней возможно применить без потери удобства.
В силу разнообразия проектов и конструкций, перила для лестниц в программе никак не рассчитываются и не показываются.
Важно! Обратите внимание на размеры поворотных ступеней. Что бы получить размеры ступени — не забудьте прибавить к этим размерам величину выступа
Расчет каменной лестницы для ничем не отличается от расчета деревянной или металлической лестницы. Главное — правильно рассчитать размеры ступеней. Их высота обязательно должна быть одинаковой для всех ее частей.





Расчет удобства лестницы вычисляется по формуле, основанной на длине шага. Длина шага человека составляет от 60 до 66 см, в среднем — 63 см. Удобная лестница соответствует формуле: 2 высоты ступени + глубина ступени = 63±3 см.
Наиболее удобный наклон лестницы — от 30° до 40°. Глубина ступеней лестницы должна соответствовать 45 размеру обуви — не меньше 28-30 см. Недостаток глубины можно компенсировать выступом ступени. Высота ступени должна быть до 20-25 см.
Программа нарисует чертежи лестницы с поворотными ступенями с основными углами и размерами. На чертежах показаны общие размеры лестницы, разметка верха ступеней на тетивах, углов ступеней и основные размеры самих ступеней.
Надеюсь, программа поможет вам спроектировать и изготовить лестницу для дачи или дома своими руками.
Этап №4 – точный расчёт размеров лестницы
Все элементы в лестничной конструкции взаимосвязаны между собой. Произвести их подсчёт помогут элементарные знания по геометрии. Главными параметрами, с которых следует начинать — это длина и ширина конструкции. Рассмотрим пример расчёта для комнаты, которая не ограничена пространством для установки двухмаршевой лестницы.
Начинают с вычисления длины лестницы. Определить её можно следующим способом:
- К высоте комнаты прибавляется толщина перекрытия. Для данного примера высота комнаты составляет 3000 мм, а перекрытия 200 мм. В результате получают 3200 мм. Затем полученный результат делят на 160 мм, то есть на высоту ступенек, и получают 20. Это означает, что количество ступеней в этом случае равно 20.
- Далее необходимо определиться с шириной ступени. Специалисты рекомендуют устраивать их шириной в 300 мм. Если учесть уровень выноса ступени, то для определения длины лестницы необходимо умножить количество ступеней на 250 мм. В итоге получают конструкцию длиной 5000 мм.
- На следующем этапе приступают к расчёту ширины двухмаршевой деревянной лестницы. Выполняется он следующим способом: из высоты комнаты вычитают ширину просвета, который по нормам составляет 1900 мм. В итоге получаем результат 1100 мм. Затем необходимо его разделить на параметр высоты ступени – 160 мм, в результате чего получают число ступеней, над которыми размещают перекрытие. В этом случае получается приблизительно 7 ступеней.
- Оставшиеся 13 ступеней размещают в зоне отсутствия перекрытий. В противном случае передвижение по ним будет не комфортным. Так, ширина ступени в этом случае составляет 300 мм, ширину прохода рассчитывают по формуле 13 умножают на 300 мм и получают 3900 мм.
Отличными помощниками в более серьёзных расчётах, таких как для лестницы с поворотом ступеней на 180 градусов, станут онлайн-калькуляторы, которые можно найти в интернете.
Программа расчёта поворотных лестниц
Поворотные лестницы весьма популяры, их конструкция занимает небольшое пространство. Также они удобны в эксплуатации и по ним можно переносить объёмные предметы. Расчёт поможет произвести программа расчёта поворотных лестниц.
Для расчёта необходимо в специально отведённые окошки программы занести значения следующих размеров:
- Длина проёма;
- Высота проёма;
- Ширина лестницы;
- Толщина ступеней;
- Размер выступа ступеней.
Программа произведёт расчет всех необходимых параметров и начертит чертёж. Существует три формулы для расчёта лестниц, все они могут применяться программой. Формула безопасности вычислит самые оптимальные параметры для эксплуатации лестницы.
Формула удобства сделает чертёж максимально удобной конструкции. Самая популярная формула Блонделя выдаёт основные параметры.
Программы расчёта, использующие все три формулы, показывают наиболее точные результаты. Стоит помнить, что нежелательно оснащать лестничный марш слишком большим количеством ступеней, по таким лестницам очень сложно подниматься. Оптимальное количество ступеней в одном марше должно быть не больше 15, идеально 11. Марши с меньшим количеством располагают в нижней части конструкции.
Расчет наклона ступеней лестницы позволит спроектировать удобную и безопасную конструкцию. Подробнее про это читайте тут: .
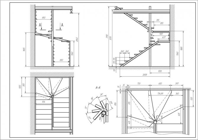
Этап №5 – детальный чертёж и эскиз
Перед тем как начать расчёты поворотной лестницы на 180 градусов, необходимо создать эскиз конструкции. Для маршевой лестницы на эскизе обязательно указывают размеры. На бумагу наносят не только параметры конструкции, но и самого помещения. Обязательно отмечают места расположения окон, дверей и прочего. Некоторые примеры чертежей можно увидеть на представленных ниже фото.



Любому потребителю хочется иметь комфортную и красивую лестницу. Но кроме этих свойств, конструкция должна обладать надёжностью и высокой прочностью. Только в этом случае обитатели смогут ощущать удобство при её использовании. Не следует забывать и о поручнях, которые выступают не только декоративным элементом, но и прекрасной защитой от падений при движении по лестнице.
Ошибки проектирования и советы экспертов (1 видео)
Интересные модели лестниц (48 фото)






















































