

При монтаже дверей размер дверных проемов приобретает первостепенное значение. Разберемся, какие значения задает ГОСТ, и что делать, если размеры проема под дверь отличаются от него.
Чтобы не иметь в дальнейшем проблем с установкой дверей, стоит определить размеры дверных проемов по ГОСТу еще на этапе строительства. Разберемся, какие параметры считаются стандартными для дверей между комнатами и на улицу. Кроме того, выясним, когда выгодно предпочесть нестандартные проемы и что делать, если в вашем доме их величина не соответствуют нормативам.
Как определить какой нужен размер входной двери: параметры
Определение параметров двери, подбор ее под проем поможет вам сэкономить время и средства. Ведь, если вы возьмете неверные расчеты, то столкнетесь с такой ситуацией, когда необходимо приобретать дверь нестандартного образца, менять величину входного прохода либо добавлять стене отделку.
Сегодня существуют стандартные параметры дверей как отечественных производителей, так и импортных:
- Ширина: от 60 см до 80 см.
- Толщина самой коробки: от 1,5 см до 4 см.
- Высота – 2 м.
Следовательно, если вы затеяли устанавливать новую дверь, знание параметров поможет вам скорректировать размеры проема. Поскольку стандартная дверь примерно на 30% стоит дешевле, нежели нестандартная дверь.
Для вычисления размеров двери воспользуйтесь следующими методами:
- Во время установки двери для начала измерьте отверстие в стене, куда вы планируете вставлять общий блок.
- На дверном полотне найдите параметры, которые указывают производители. Данные параметры вы также можете найти в документах, прилагаемых к изделию.
- Размер коробки двери получите следующим образом: прибавьте к ширине общего полотна примерно 60 см. Затем к высоте полотна прибавьте 30 см. Размер непосредственно влияет от величины проема, от величины полотна двери.
Размеры для входной двери
Теперь узнаем, что же такое ширина и высота дверного полотна:
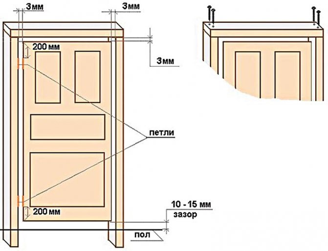
- Ширина – главный показатель параметра. Если ширина проема 93 см, тогда полотно необходимо брать то, где ширина равна 80 см. Если ширина равна 90 см, проем будет очень узким, а при ширине 72 см – сильно широким. Во время подсчета ширины обязательно учтите толщину двери (примерно 3 см) с обеих сторон полотна, плюс запас, дающий для монтажа.
- Высоту измеряйте с обеих сторон. Классическая высота – 2 м. Если проем равен 2 м 15 см, тогда вам нужно взять не один наличник. В данном случае вам придется устанавливать очень широкие наличники или уменьшать высоту проема. Если же проход равен менее 2 м 3 см, тогда стандартная дверь в него не войдет. Можете ее подрезать (не особо желательно) или расширить сам проход (потребуются дополнительные средства).
Как правильно измерить дверной проем. Вам помогут следующие подсказки:
- Измерьте ширину от одной стены до другой стены.
- Высоту измерьте от стены до поверхности пола.
- Когда будете снимать замеры, уберите наличники.
Чтобы получить точные параметры входной двери, выполните следующе действия:
- Если дверь не будет иметь порог: 2 м + 2,5 см + 1,5 см + 1 см = 2 м 5 см
- Если дверь будет иметь порог: 2 м + 2,5 см + 2,5 см + 1,5 см + 1,5 см = 2 м 8 см









Что делать, если не по ГОСТу
Ситуация, когда дверной проем не соответствует требованиям стандарта, встречается не так уж редко. Она может быть вызвана ошибками строителей, деформацией материалов, изначальным сознательным отступлением от норм ради архитектурных замыслов. И тогда какие-нибудь 2-3 мм не позволяют уместить коробку на месте.
В этой ситуации возможны два противоположных решения. Оба они имеют одинаковую идею: достичь рекомендованных стандартом значений. Но достигается цель разными путями. У каждого из них есть свои преимущества и недостатки. Рассмотрим их подробнее.
Делаем из маленького большое
Если проем слишком мал, его расширяют, стачивая стены. Этот путь выбирают, если отклонение от рекомендованных размеров обнаружилось, когда дверь уже куплена. Есть смысл использовать этот способ при соблюдении следующих условий:
- Установке коробки мешает кривизна стены или один-два выступа. Обтесывать проем по периметру будет слишком трудно.
- Стены выполнены из относительно мягкого материала, например дерева, бетона, кирпича.
Чтобы стесать мешающие выступы, понадобится подходящий инструмент и много терпения. Главное – не переусердствовать, чтобы разрушения не оказались слишком большими.
Уменьшаем большой проем
Если первый способ не годится, остается сделать проем уже, чтобы поставить дверь меньшего размера. К примеру, ширину в 89 см привести к предусмотренным стандартом 80 см. Лишнее пространство закладывают кирпичом либо закрывают брусом, обработанным антисептическими растворами. Остается оштукатурить стены и добиться ровных плоскостей.



Какие размеры площадки должны быть перед входной дверью?
Чтобы зайди в дом, необходимо сначала пройти площадку, которая расположена перед входом. К данной площадке предъявляются отдельные требования. Здесь все зависит от определенной ситуации и от самого жилья.
- Пол площадки должен иметь твердую поверхность. На нем должны отсутствовать сколы и выбоины. Если площадка предусмотрена в частном доме, тогда над дверью обязательно повесьте козырек. Желательно, чтобы данный навес закрывал всю площадку.
- Если дверь открывается в помещение, тогда величина площадки от двери до ее края должна быть не менее 120 см. Если дверь открывается с помещения, тогда расстояние должно быть минимум 150 см. Идеальная ширина самой площадки может варьироваться от 2 м до 2 м 50 см. Для тамбура подходит площадка, ширина которого составляет 1 м 80 см.
Данные размеры необходимы для того, чтобы было удобнее и безопаснее передвигаться по площадке людям, которые имеют ограниченные потребности. Например, женщинам в положении или мамочкам с детками на колясках.
Для оформления площадки перед входной дверью тоже имеются определенные параметры
Если площадка немного приподнята, оснащена ступеньками, тогда необходимо устанавливать перила. Для этого приобретите удобные перила, чтобы они хорошо захватывались руками и не скользили. Не забудьте над дверью повесить светильник, поскольку в темноте вечером или ночью можно упасть, получить травмы. Светильник разместите на высоте не больше 2 м от площадки. Дорожку, которая ведет к двери, также осветите.
Преимущества использования стандартов
В первую очередь стандарты позволяют подобрать площадь двери, если вы не можете точно назвать параметры дверного проема. Достаточно знать тип двери (полуторная, двустворная, одностворная) и тип входного проема. Во-вторых ориентация на стандарты избавит вас от проблем с изменением размеров проема – если ни одна дверь, изготовленная по стандартам, вам не подойдет, проем придется расширять или увеличивать, что также доставляет массу неудобств. В-третьих использование стандартов позволяет забыть о проблемах при оформлении документов и выполнении перепланировок.
Какие бывают стандартные и минимальные размеры входных дверей в многоквартирных домах?
Благодаря стандартным дверям фирмы получают возможность применять специальную технику, которая не нуждается в дополнительной перенастройке под минимальные значения габаритов.
Стандартные дверные полотна обладают следующими преимуществами:
- На рынке всегда можно отыскать большой ассортимент дверей, что дает возможность подобрать самую идеальную модель с учетом своих пожеланий и предпочтений. Фирмы изготавливают классические модели из металла, утепленные варианты, которым не страшны перепады температуры.
- Легкий монтаж. Двери почти совпадают с величиной проемов. Крепятся они просто: дверь фиксируется при помощи анкеров. Нестандартные элементы монтируются сложнее. Здесь необходимо дополнительно расширять дверной проем.
- Цена. Стандартные двери понижают значительно затраты. И все потому, что используются производственные алгоритмы, которые могут без проблем автоматизироваться. Многие модификации выполняются из недорогих материалов. Это тоже влияет на стоимость продукта.
- Универсальность. Двери после установки можно без проблем заменить: старое полотно демонтируется, вставляется новое, стандартного размера.
Существуют минимальные и максимальные параметры
Чтобы выбрать правильно дверь для новой квартиры, учтите следующие нормативы:
- Если квартиру вы приобрели в новостройке, тогда вам придется купить дверь: высотой 1 м 95 см – 1 м 98 см, шириной 74 см – 76 см.
- Если ваша будущая квартира находится в кирпичном многоквартирном доме, тогда вам подойдет дверь: шириной от 88 см до 92 см, высотой – от 2 м 5 см до 2 м 10 см.
- В старых квартирах подходят конструкции: от 83 см до 96 см (ширина), от 2 м 4 см до 2 м 60 см (высота).
Как правильно измерить дверной проем
Наиболее простое решение вопроса с размерами дверей – снять мерки со старой двери. Но если раньше двери не было (например, выполняется первичная отделка построенного дома), придется определять размеры по проему.
Если в проеме раньше стояла дверная конструкция, перед замерами его тщательно подготавливают. Убирают старую коробку, наличники, монтажные пластины. Все неровности поверхностей скалывают. Также требуется убрать все отвалившиеся при демонтаже старой коробки фрагменты.
Геометрическая форма проема – прямоугольник. Но для определения размеров двери будет недостаточно замерить только длину и ширину. Дело в том, что даже опытные строители не могут гарантировать абсолютную точность всех линий и углов. Поэтому требуется сделать измерения в нескольких точках:
- Высоту проема меряют дважды, у правого и левого косяка.
- Ширину меряют в 30-50 см у пола и притолоки. Для большей точности лучше провести еще одно измерение на середине высоты проема.
Полученные размеры наносят на схему дверного проема. Сравнив полученные числа, вы увидите, где имеются узкие и широкие места, а также поймете, удастся ли установить в этот проем выбранную коробку. Если самое узкое место позволяет установку, проблем не буде. Если нет – придется думать о том, как скорректировать проем.
Кроме размеров, потребуется провести проверку геометрии. В этом помогут отвес (нитка с грузом) и пузырьковый уровень. С помощью этого нехитрого инструментария проверяют отвесность косяков и параллельность притолоки относительно Земли. Отклонения в пределах 10 мм допускается проигнорировать, но если кривизна больше, придется корректировать проем перед установкой двери.
Метрическая и английская системы измерений дверей
Так как на рынке сегодня представлено большое количество дверных конструкций отечественных и иностранных компаний, в обиходе есть разные системы вычислений. Во время выбора двери учитывайте ту систему, которую предлагает производитель.
Метрическая
- Простая дверь из металла имеет такие параметры: высота 2 м 4 см, ширина – 82 см 6 мм.
- Усиленная дверь из металла обладает такими габаритами: высотой — 2 м 5 см, шириной – 86 см.
- Двустворчатые двери, как правило, имеют такие параметры: высоту – 2 м 41 см 9 мм, ширину – 1 м 91 см.
Английская
Многие зарубежные производители, когда изготавливают двери, пользуются английской системой измерения. Стандартные двери имеют такие габариты:
- Высота – 6 фут 8 дюйм.
- Ширина – 2 фут 9 дюйм.
Если данные показатели перевести по метрической системе, то они будут соответствовать: высота – 2 м 32 мм, ширина – 84 см.
Очень жаль, но сегодня не все стараются придерживаться стандартных параметров и нормативов. Следовательно, люди заказывают нестандартные дверные конструкции.



Действующие нормативы
В настоящее время каждый из входных дверных проемов, согласно пункту 6.9 нормативного документа СНиП 210197, является объектом, относящемся к эвакуационным выходам. Поэтому одним из главных требований является обеспечение свободного и быстрого перемещения в случае экстренной эвакуации. Для этих целей дверная конструкция, расположенная в качестве входной, должна соответствовать минимальным допустимым размерам.
Таким образом регламентируется, что минимальная высота должна превышать отметку в 1900 мм. А ширина дверного проема для помещений жилого типа не может быть меньше 800 мм. При этом габариты дверей для офисных и прочих общественных помещений имеют минимальные показатели в 1900*1200 мм.
Парадные металлические конструкции квартир многоэтажных домов по своим габаритам должны совпадать либо превосходить ширину лестничного марша. Данные требования содержатся в документе СНиП под пунктом 6.29. Такие конструкторские решения, исходя из расчетов, позволяют обеспечить безопасность и эвакуационных мероприятий для всех жильцов многоквартирного дома.
Помимо этого, соблюдение нормативов позволит беспрепятственно производить доставку габаритных предметов мебели и крупную бытовую технику.
Особенности
Основная масса дверей делается стандартными, но важно учитывать, что однозначно предписанных величин коробок для межкомнатных проходов не существует. Рекомендуется подбирать коробку таким образом, чтобы вся конструкция могла бы гармонично войти в проем
По высоте и ширине рекомендуется брать комплект немного (в пределах трех сантиметров) уступающий проему.
Наибольший стандартный размер коробки по ширине — 90 сантиметров, но отыскать такую модель можно в каталоге далеко не каждого производителя. Ведь в многоэтажных и в современных частных домах проемы подходящего размера – большая редкость. Самые широкие двери можно встретить в «сталинской» застройке, а также в крупных офисных центрах.
Коробки для дверей, не имеющих порогов, делаются в форме буквы П, из пары деревянных стоек, соединяемых сверху поперечной перекладиной. Преимуществом таких решений оказывается совместимость со створками самой разной высоты и их дешевизна. Прямоугольные рамы, изначально имеющие порог, нужны тем, кто хочет максимально просто и быстро установить всю конструкцию. Рекомендуется выбирать телескопические наличники, потому что изделия с ними будет проще переставить при капитальном ремонте.
Отделка панелями МДФ
МДФ применяется для внутренней обшивки входных дверей в жилых домах и офисных помещениях. Материал характеризуется долговечностью, гигиеничностью и эстетичностью, обеспечивает хорошую звуко- и теплоизоляцию, неплохо переносит воздействие влаги. Стоят панели 150-250 р. за квадратный метр. Древо обойдётся дороже: 300-700 р. К серьёзным недостаткам материала относятся его лёгкая воспламеняемость и то, что облицовка возможна только после монтажа каркаса.
К недешёвым покупкам относится и приобретение шпона – древесного материала, отличающегося высокой прочностью и эстетической привлекательностью. Правда, прямые солнечные лучи для него губительны. Цена квадратного метра – до 5 000 р.
Чтобы украсить дверной проём деревом, шпоном или панелями мдф, нужно:







